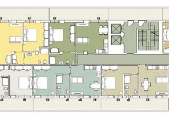
Gbpa architects ha sviluppato lo studio di fattibilità per la riqualificazione dell’immobile esistente con l’obiettivo di trasformarlo in una residenza per anziani autosufficienti (ra). Le scelte progettuali hanno come finalità quella di combinare le particolari esigenze funzionali, tecnologiche e distributive richieste da questo tipo di destinazione d’uso con un’immagine esterna dell’edificio propria di una residenza contemporanea, accogliente ed efficiente allo stesso tempo, perfettamente integrata con l'ambiente circostante
Questo sito o gli strumenti terzi da questo utilizzati si avvalgono di cookie necessari al funzionamento ed utili alle finalità illustrate nella cookie policy. Se vuoi saperne di più o negare il consenso a tutti o ad alcuni cookie, consulta la cookie policy. Chiudendo questo banner, scorrendo questa pagina, cliccando su un link o proseguendo la navigazione in altra maniera, acconsenti all'uso dei cookie.