Smart suitable shape
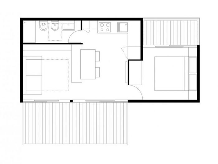
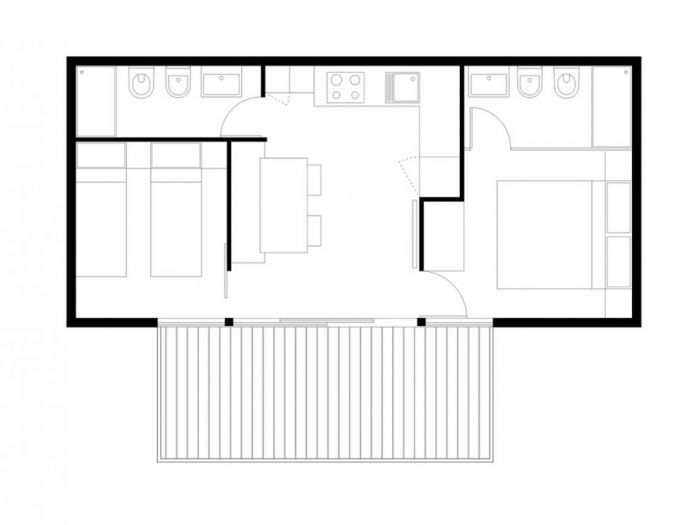
Il progetto di minihouse ha da sempre esercitato le doti compositive dei più esperti architetti. Incastrare sapientemente in un piccolo spazio le molteplici funzioni dell’abitazione, senza rinunciare al confort dello spazio è la vera sfida che s-unit ha provato a vincere. Le s-unit sono case. Unità abitative mobili dalle geometrie essenziali e finiture personalizzabili, in rapporto diretto e simbiotico con l’ambiente esterno. Pensate per sentirsi sempre a casa, anche in vacanza. Un progetto su tre modelli di case prefabbricate in legno dalle elevate prestazioni energetiche, modulari tra loro e modulabili al loro interno, finalizzate al mercato turistico che richiede oramai standard abitativi sempre più prossimi a quelli alberghieri e flessibilità nel medio periodo.
Questo sito o gli strumenti terzi da questo utilizzati si avvalgono di cookie necessari al funzionamento ed utili alle finalità illustrate nella cookie policy. Se vuoi saperne di più o negare il consenso a tutti o ad alcuni cookie, consulta la cookie policy. Chiudendo questo banner, scorrendo questa pagina, cliccando su un link o proseguendo la navigazione in altra maniera, acconsenti all'uso dei cookie.