Menu

Virginia Tentori

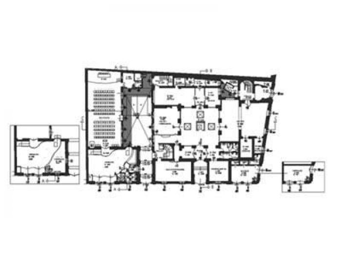
Palazzo falck - Lecco (LC)

Numero di immagini
16
Visite ricevute
1.0K
Like ricevuti
Il progetto ha trattato il recupero dell’edificio, già sede della banca d’italia, da destinare a sede di confcommercio lecco; è stato elaborato attraverso un continuo confronto con la sopraintendenza ai beni architettonici e culturali, essendo sottoposto a vincolo diretto ai sensi del d.lgs 42/2004. Il contenuto storico e culturale è stato approfondito anche grazie al rapporto con la città ed il tessuto urbano, prevedendo il mantenimento degli spazi collettivi e la riconversione degli spazi interni, coniugando la nuova esigenza funzionale con l’impianto compositivo esistente. La destinazione ad uffici (sup. 2880 mq) si affianca alla sala civica indipendente (capienza 100 persone) situata al piano terra ed aperta alla cittadinanza. Sono stati inseriti elementi di nuova progettazione, coniugati al recupero di materiali interni di pregio. Nel corso dei lavori è stato rinvenuto un affresco su soffitto che è stato oggetto di specifico intervento di restauro. Grande attenzione è stata rivolta al progetto impiantistico, integrato al restauro, capace di essere innovativo per le soluzioni proposte. Sotto il profilo strutturale sono stati operati consolidamenti all’avanguardia, quali fibre di carbonio. Il palazzo restaurato è un punto di riferimento nella vita sociale cittadina ed è stato pubblicato da numerose riviste di settore.
 
Vedi gli altri progetti
 
Vai su
Invia una richiesta di lavoro a Virginia Tentori
+ Allega file
Invia
 
Architetti vicino a te
Professionisti selezionati:
Cambia filtri
INVIA
Modifica filtri
Annulla
Chiedi un preventivo gratuito a Virginia Tentori