Menu

Tiziana Decaria

Nuovo teatro comunale - Vibo Valentia (VV)

Numero di immagini
21
Visite ricevute
950
Like ricevuti
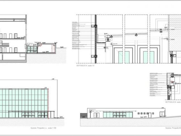
Appalto per l’affidamento dei servizi di progettazione definitiva ed esecutiva con connesse attività tecniche amministrative e lavori per la realizzazione del “nuovo teatro comunale di vibo città”. La funzionalità dell’opera è stata una delle direttrici principali che hanno guidato la progettazione e hanno determinato la possibilità di utilizzo ottimale del bene. Il funzionamento globale della struttura abbinato a scelte di materiali specifici di alto pregio (materiali per platea, palco, pannelli riflettenti e fonoassorbenti, golfo mistico, macchina teatrale, vetrate, ecc..) consentono di poter effettuare una proposta qualitativamente significativa. Molte delle migliorie e delle variazioni proposte sono scaturite proprio dalla necessità di rendere pienamente fruibile e funzionale l’intera struttura. L’approccio progettuale per la definizione dell’organismo architettonico destinato a “teatro” risulta particolarmente complesso poiché in esso convergono problematiche specifiche difficilmente riscontrabili in altri organismi. La progettazione acustica dell’intero complesso e la definizione puntuale dell’impianto specifico per il funzionamento della struttura – la cosiddetta “macchina teatrale” – condizionano e determinano ogni altro aspetto della progettazione architettonica, strutturale ed impiantistica. Affinché l‘opera risponda alle sue esigenze funzionali – che è bene ricordare sono: rappresentazioni teatrali di prosa, opere liriche, operette, spettacoli di danza, concerti per grandi complessi o per piccoli complessi o esecuzioni solistiche – è necessario che al fruitore-spettatore vengano garantite le migliori condizioni acustiche per una corretta intelligibilità dei messaggi sonori o vocali che gli artisti trasmettono loro nel caso di spettacoli di prosa e per la corretta percezione della performance degli esecutori nel caso di concerti. In funzione del tipo di messaggio sonoro vanno dunque definite le caratteristiche del campo sonoro diretto, delle prime riflessioni e della coda sonora, e studiate di conseguenza: La geometria della sala, ovvero delle superfici di confine e non in essa presenti; Le caratteristiche acustiche delle superfici stesse. Già in sede di redazione del progetto definitivo, sono stati definiti dal gruppo di progettazione, con l’apporto altamente qualificato del consulente per l’acustica e per l’impianto teatrale, i criteri basilari da seguire nella progettazione della sala. Tali criteri hanno determinato le condizioni essenziale affinché la progettazione rispondesse pienamente alle esigenze funzionali, estetiche, architettoniche richieste dall’amministrazione appaltante. Da quanto sopra è emersa la necessità di procedere ad una ottimizzazione del progetto in modo che risponda alle suddette esigenze e le parti più significative di tale operazione progettuali sono state già evidenziate in sede di progetto definitivo e riprodotte in sede di redazione del progetto esecutivo. Si è pertanto proceduto, ad esempio, alla ridefinizione delle dimensione della sala allungandola, rispetto al progetto preliminare, verso il foyer, di quel tanto ( ml. 2.50 ca.) che si è reso necessario ai fini dell’ottimizzazione acustica mantenendo inalterata l’impostazione complessiva e la forma a “ferro di cavallo” voluta dall’amministrazione appaltante. Peraltro l’allungamento della sala si reso anche necessario in seguito alla totale riprogettazione del “golfo mistico” del tutto inadeguato nella progettazione preliminare e del quale si argomenterà in seguito. Accanto alle scelte architettoniche determinate dalle necessità di una acustica ottimale, il gruppo di progettazione ha affrontato e risolto, apportando le necessarie variazioni, integrazioni e migliorie rispetto al progetto preliminare, le problematiche relative al funzionamento ottimale della “macchina teatrale” ed alcune relative al funzionamento ottimale dell’intera struttura. Criteri adottati per le scelte progettuali Funzionalità, modalità di utilizzo del bene, qualità della proposta Come già esplicitato nella premessa, la funzionalità dell’opera è stata una delle direttrici principali che hanno guidato la progettazione e hanno determinato la possibilità di utilizzo ottimale del bene. Il funzionamento globale della struttura abbinato a scelte di materiali specifici di alto pregio (materiali per platea, palco, pannelli riflettenti e fonoassorbenti, golfo mistico, macchina teatrale, vetrate, ecc..) consentono di poter effettuare una proposta qualitativamente significativa. Molte delle migliorie e delle variazioni proposte sono scaturite proprio dalla necessità di rendere pienamente fruibile e funzionale l’intera struttura. Nel procedimento di ottimizzazione del progetto sono state operate le seguenti principali scelte che portano la qualità architettonica e la funzionalità dell’opera a rispondere alle esigenze prospettate dall’amm.ne appaltante. Ribaltamento del teatro intorno all’asse trasversale Il ribaltamento del teatro intorno all’asse trasversale ha consentito di ottenere un risultato importantissimo per la definizione architettonica, estetica e funzionale: nel preliminare la torre scenica è posizionata sul lato prospiciente le due strade principali. Tale soluzione porta ad avere come prospetto principale lungo il viale che conduce al parco urbano l’imponente massa della torre scenica il cui impatto architettonico ed estetico diventa devastante sia per la dimensione della stessa sia per l’obbligata l’assenza di bucature architettoniche e la presenza solo di quelle di servizio che ovviamente limitano molto le possibilità di definizione del prospetto. Con il ribaltamento proposto pertanto si riportano sui due prospetti prospicienti le due strade più importanti, la facciata vetrata principale e la facciata contenete il blocco scale e servizi del foyer che ha consentito una più ampia ed organica definizione del rapporto pieni-vuoti delle bucature rendendo la stessa facciata architettonicamente significativa e contemporaneamente alleggerendo notevolmente l’impatto della torre scenica sul prospetto principale. Ampliamento della platea verso il fondo L’ampliamento della platea verso il fondo, di circa 2.50 ml. Nella parte più ampia, si è reso indispensabile per l’ottimizzazione della risposta acustica della sala e per ottenere un più congruo “indice volumetrico. Pertanto per l’ottenimento della necessaria ottimizzazione acustica si è ritenuto necessario modificare le proporzioni della sala d’ascolto in funzione della particolare forma geometrica richiesta. Il nuovo indice volumetrico ottenuto offre buoni presupposti per l’utilizzo dell’ambiente non solo come teatro lirico ma anche per esecuzioni concertistiche. Inoltre l’ampliamento ha consentito di porre rimedio all’inosservanza nel progetto preliminare del d.m. Min. Interno 19 agosto 1996 – regola tecnica di prevenzione incendi per la progettazione, costruzione ed esercizio dei locali di intrattenimento e pubblico spettacolo che al punto 3.1 prevede i corridoi trasversali massimo ogni 10 file. Pertanto con tale miglioria si è potuto realizzare il prescritto corridoio trasversale centrale mantenendo al contempo inalterato il numero di posti imposto dall’ente appaltante. Realizzazione di palco in tavolato di abete e cassa acustica di risonanza sottopalco L’utilità acustica di un volume risonante sotto il pavimento ligneo del palcoscenico è universalmente riconosciuta. Nel nostro caso si creerà tra la struttura di solaio ed il tavolato del piano di calpestio un’intercapedine alta cm 200 circa. Per il pavimento del palcoscenico l’essenza lignea che meglio risponde alle esigenze acustiche è l’abete (od in alternativa il pioppo), legno elastico, morbido, con una risposta acustica, di conseguenza più pastosa rispetto a quella delle essenze dure. Realizzazione pavimento della platea in tavolato di rovere e cassa acustica di risonanza sottoplatea Il pavimento della platea, con la creazione del “plenum” necessario per il sistema di condizionamento e microclima, è un tavolato con sottostante cassa armonica.la realizzazione della cassa armonica sotto la platea è elemento indispensabile per l’ottenimento di prestazioni acustiche di livello elevato. La verifica acustica previsionale ha confermato, anche attraverso i risultati dei descrittori fisici analizzati, la correttezza della scelta di tale soluzione.la pavimentazione della platea che avrà spessore del listone di 22 mm in rovere (essenza poco elastica ma più resistente all’usura) sarà accoppiata, a 60 mm di multistrato ignifugato e poggerà su dormienti lignei che faranno da elemento elastico e distanziatore tra la pavimentazione e la struttura sottostante. Realizzazione del golfo mistico (buca per l’orchestra) Il golfo mistico, non previsto nel preliminare, costituisce uno degli elementi essenziali di un teatro moderno. Esso da la possibilità di poter effettuare nel teatro opere liriche, operette e balletti, altrimenti non effettuabili. E’ evidente che l’ubicazione dell’orchestra sul palco, in assenza del golfo mistico, non consentirebbe la realizzazione di tali spettacoli. In tal modo si aumenta notevolmente la possibilità di gestione e di redditività della struttura. E’ stato dimensionato secondo gli standard ottimali per tale spazio (0.95 – 1.30 mq/musicista) e secondo criteri di eccellente risposta acustica (altezza, larghezza, struttura di pavimento a celle armoniche, rivestimento risonante ecc..) consentendo in tal modo la presenza di orchestre di medie-grandi dimensioni. Realizzazione del pavimento del golfo mistico (buca orchestra) con struttura a celle armoniche La pavimentazione del golfo mistico sarà in tavolato d’abete spessore 42 mm, posato a maschio e femmina, avvitato alla sottostante struttura su doppia orditura di morali a creazione di un’intercapedine alta cm 60 circa.la cavità risonante del golfo mistico sarà ottenuta con un’intercapedine alta cm 60 circa, intercapedine che sarà frazionata da una struttura alveolare di cm 60x60x30 h (struttura a celle armoniche) costituita con tavole d’abete, piallate ed ignifugate, spessore cm 4,2 circa. L’interno dei parallelepipedi sarà frazionato da un setto diagonale di cm 60×2,2 circa (diagonale del parallelepipedo). Pareti del golfo mistico o “risuonatori a membrana” Le pareti lato platea e lato palcoscenico oltrechè la porzione di intradosso del pavimento del palco saranno rivestite in pannelli curvati di multistrato ignifugato le due pareti laterali del golfo mistico saranno anch’esse rivestite con due pannelli curvi di larghezza 180 cm e spessore 30 mm per garantire anch’essi la necessaria diffusione di questa area. Inserimento di pannelli in legno fonoassorbenti sul fronte e sotto il parapetto dei palchetti In relazione alla risposta acustica della sala scaturente dalla dettagliata analisi e correzione dell’involucro della stessa sono stati previsti i particolari pannelli risuonatori a cavità multipla in legno e materiale fonoassorbente che coprono il fronte dei palchetti continuando sul soffitto del sottostante.questa soluzione di fondamentale importanza, insieme ad altre, quali ad esempio quella per il soffitto della sala, hanno consentito di ottenere una eccellente risposta acustica, pur nei limiti della forma e delle dimensioni imposte. Realizzazione di controsoffitto acustico della sala La forma piana del soffitto della sala platea, come prevista dal preliminare, avrebbe prodotto effetti di notevole disturbo della risposta acustica della sala.la particolare forma plastica del controsoffitto proposto permette una sensibile diffusione sonora di questa grande superficie ottenuta con pannelli leggeri in cartongesso dello spessore di 15 mm. Saranno quindi posate delle campiture sagomate, riflettenti realizzate con pannellature modulari accostate a sezione arcuata. Pareti interne dei palchetti Le pareti laterali dei palchetti saranno realizzate in legno che sarà in seguito rivestito rivestito su ambo i lati da tessuto su fibra di poliestere al fine di controllare la risposta acustica della sala evitando fastidiose riflessioni. Inserimento di ballatoi e relativi mantegni per gestione ed ancoraggio tiri manuali Oltre al ballatoio perimetrale di palco a q.6.90 viene inserito un ballatoio laterale a q. 3.90 per la gestione e l’ancoraggio dei tiri manuali non essendo possibile effettuare questa operazione a quota palco stante la presenza degli spazi laterali al palco il cui uso impedisce gli ancoraggi a terra. Riorganizzazione funzionale ed ottimale degli spazi fuori scena, dei camerini e laboratorio Si è proceduto alla riorganizzazione degli spazi inserendo ad esempio dei cameroni, ottimizzando i servizi igienici, inserendone anche uno per il laboratorio con il relativospogliatoio, rendendo conforme a normativa sia le dimensioni della scala sia quelle dell’ascensore. E’ stata inoltre inserita una regia per l’audio ed una per le luci. Macchina teatrale Inserimento di tutti gli elementi necessari al funzionamento del della struttura teatrale quali ad esempio, graticcia di palcoscenico in doghe di legno o di acciaio, botola di servizio per la movimentazione dalla quota del piano palco alla graticcia; tiri manuali con n. 100 rocchetti e ulteriori 20 rocchettiere da 5 rocchetti, 80 matasse di corda; torri luci di boccascena con struttura a traliccio munite di canale prese; arredamento del palcoscenico costituito da tendaggi in velluto di cotone ignifugo foderato, guida motorizzata per sipario, sipario su guida motorizzata, arlecchino fisso con traliccio. Ottimizzazione delle passerelle al ridotto dei palchi Si è proceduto alla riorganizzazione delle passerelle per rendere conformi a normativa i percorsi di sicurezza, gli accessi alle scale agli ascensori ed ai servizi igienici di piano. Realizzazione di plenum per diffusione condizionamento della salaal di sotto del pavimento della sala si prevede la realizzazione di un plenum per la microdiffusione dell’aria condizionata sotto ogni singola poltrona in modo da non interferire con la cassa acustica sottoplatea e rendere nulli i rumori e le vibrazioni dell’impianto di condizionamento. Riorganizzazione funzionale del bar e della piazza all’aperto- “galleria” (in parte coperta da vetrata) Si è proceduto ad una riorganizzazione funzionale dei locali bar con l’obiettivo di rendere lo stesso usufruibile in modo più razionale. Riducendo la dimensione dello stesso si è potuto inserire all’interno i locali destinati a: i servizi igienici per i disabili, i normali servizi igienici distinti per sesso, gli spogliatoi ed i servizi igienici per il personale, i locali preparazione vivande; tali locali sono peraltro indispensabili per l’ottenimento dell’autorizzazione spisal. L’inserimento di un locale preparazione vivande, insieme all’apertura del bar verso l’esterno mediante lo sforamento della parete esterna della piazza nella porzione coperta consentirà l’apertura dell’esercizio tutto l’anno anche in orari e giorni non correlati alla presenza di spettacoli rendendo produttiva la struttura e quindi fonte di reddito per l’amministrazione. Si è inoltre ricavato un ufficio con relativo servizio per la direzione. In effetti l’unico locale destinato ad ufficio previsto nel preliminare era quello posto all’ultimo piano della torre scenica sopra i camerini, che è comunque presente anche in questo progetto, ma che ovviamente è del tutto inadatto per posizione e per accessibilità ad essere utilizzato come ufficio di direzione e di rappresentanza. Realizzazione di impianto fotovoltaico Sulla copertura si prevede l’installazione di un impianto di produzione energia elettrica da pannelli fotovoltaici che consentirà un notevole abbattimento dei costi energetici rendendo la struttura autonoma per le normali attività con la sola esclusione dell’illuminazione specifica di palco ed il condizionamento. Definizione del progetto strutturale Il progetto esecutivo delle strutture è stato redatto nel pieno rispetto del progetto definitivo e, più in generale, delle prescrizione di cui al titolo ii, capo i, sezione iv del dpr 207/2010.la definizione della tipologia delle strutture è scaturita, per come già definito nei precedenti livelli di progettazione, dagli obiettivi derivanti dal quadro esigenziale complessivo dell’opera, e dal complesso dei vincoli, derivanti dalle specificità del territorio e del sito su cui dovrà realizzarsi l’intervento. Il vincolo più rilevante che si pone per le strutture è quello sismico, attesa la pericolosità del sito (zona 1a categoria), anche se i fattori locali di accentuazione delle azioni attese non risultano invero particolarmente penalizzanti. Va sottolineato che l’approccio progettuale delle strutture si è rivelato particolarmente impegnativo ed articolato, sia in conseguenza delle peculiarità dell’opera, sia in relazione ai nuovi principi introdotti dalle suddette ntc.com’è noto in nuovo quadro normativo ha introdotto una sostanziale modifica nella tradizionale progettazione delle strutture, comportando l’abbandono del carattere prescrittivo della vecchia normativa ed introducendo in maniera esplicita e cogente concetti fondamentali, come quelli di gerarchia delle resistenze e livelli di duttilità.ne è conseguito che l’approccio adottato nella progettazione delle strutture è stato quindi di tipo spiccatamente prestazionale, che indipendentemente dalla cogenza delle ntc, costituisce un’impostazione che consente una serie di indubbi vantaggi. Essa infatti fornisce al progettista gli strumenti atti ad avere consapevolezza delle finalità delle singole scelte e consente di calibrare, coerentemente con tali finalità ed in relazione alle specificità sociali e funzionali dell’opera, le prestazioni richieste. Contenimento dei costi energetici e di manutenzione Facilità di gestione e manutenzione degli impianti La complessità e molteplicità degli impianti che corredano la struttura teatro è ormai cosa nota e riconosciuta. In conseguenza di ciò l’aver previsto in fase progettuale il coordinamento e la corretta separazione dei singoli impianti contribuisce alla sua futura facilità di gestione e manutenzione. A tal proposito, sfruttando le esigenze derivanti dagli aspetti geologici e strutturali che hanno richiesto la realizzazione di un piano interrato sottoplatea, si è previsto di realizzare gran parte delle colonne montanti e di distribuzione degli impianti appunto in tale piano. Ciò ha consentito di effettuare scelte tecnologiche impiantistiche considerate fra le migliori attuabili per questo tipo di strutture. Per brevità vengono riportati nel presente paragrafo gli aspetti ritenuti di maggior importanza per singola tipologia di impianto previsto.in particolare si veda ad esempio la realizzazione dell’impianto di climatizzazione della platea e del foyer dove l’intero piano sopra citato, è stato sfruttato oltre che per la distribuzione ed il passaggio dei canali verso i cavedi verticali anche con “plenum master” di mandata in cui viene immessa l’aria dal canale di distribuzione principale che la diffonde con ridotte velocità e bassissima rumorosità attraverso bocchette a pavimento nell’ambiente soprastante. Il piano interrato verrà sfruttato per la diffusione dell’aria, permette inoltre la manutenzione di tutte le linee di distribuzione degli impianti presenti con facilità di accesso. Tutti gli impianti sono separati fisicamente in spazi confinati dedicati. A corredo del presente piano tecnologico, necessario tra l’altro come cassa armonica ai fini acustici, vi sono i cavedi verticali che assicurano il collegamento. Per i canali che climatizzano i palchetti, sono previsti i controsoffitti nei corridoi di comunicazione foyer-palchetti, in modo da garantire facile manutenzione e gestione. Il posizionamento delle macchine esterne, previste in copertura e schermate dalla struttura, garantiscono la facilità di manutenzione anche grazie alla facilità di accesso previsti da uno dei blocchi scala presenti. I canali di mandata in poliuretano alluminato, saranno protetti esternamente con lamierini zincati ben sigillati per garantirli nel tempo. Stessa condizione vale per l’impianto fotovoltaico sempre previsto in copertura. Le unità esterne scelte sono delle specifiche macchine preassemblate del tipo aria-aria, adatte e specifiche per la gestione di grandi volumi di aria da trattare in tempi ridotti con minimo consumo energetico. Anche in tal caso la scelta progettuale ha ritenuto opportuno razionalizzare e parzializzare gli impianti in modo da garantirne facilità di gestione e manutenzione. Il gruppo di progettazione ha individuato n°3 impianti di climatizzazione fra i più efficienti del settore, ognuno a servizio di tre zone ben distinte: Unità roof-top a pompa di calore (con circuito frigorifero dotato di compressori scroll e fluido frigorigeno r410a con potenza frigorifera di kw 81,9 ed una potenza termica di 77,9 kw) destinata alla zona platea-palcoscenico-palchi; Unità roof-top pompa di calore (con circuito frigorifero dotato di compressori scroll e fluido frigorigeno r410a con potenza frigorifera di kw 133, ed una potenza termica di 131,4 kw) destinata alla zona foyer; Unità roof-top pompa di calore (con circuito frigorifero dotato di compressori scroll e fluido frigorigeno r410a con potenza frigorifera di kw 48.8 ed una potenza termica di 47.0 kw) destinata alla zona bar. La soluzione sopra descritta assicura in ogni circostanza invernale, viste anche le altre predisposizioni impiantistiche a corredo di tutta la struttura, lo svolgimento dello spettacolo. Per quel che riguarda gli impianti elettrici, l’aver suddiviso e parzializzato l’impianto in quadri e sottoquadri di zona garantisce al migliore gestione e manutenzione degli stessi. In tal modo un guasto o un normale intervento di manutenzione viene facilmente individuato, localizzato e risolto o effettuato con facilità. A supporto di ciò si è previsto il sistema di controllo e gestione dell’impianto che permette mediante schermi dedicati e sistemi touch screen la mappatura completa dell’impianto. Per quel che riguarda l’impianto antincendio, il locale dedicato al gruppo pompe, ne assicura la completa autonomia, facilità di gestione e manutenzione. Abbattimento dei costi di esercizio Parzializzare e razionalizzare un impianto come si sa costa di più, questo però è un onere di cui lo scrivente offerente ha deciso di farsi carico al fine di garantire all’ente appaltante sia la facilità di manutenzione e gestione, sia l’abbattimento dei costi di esercizio.l’abbattimento dei costi di esercizio è appunto garantito in primo luogo dalla predetta parzializzazione degli impianti, infatti avendo previsto ad esempio macchine separate per zona per la climatizzazione si può sicuramente asserire che volendo a cura e gestione dell’ente appaltante e/o gestore, consumerà solo la zona che verrà utilizzata. Sono considerazioni semplici incentrate molto di più su quelle apparecchiature che di fatto consumano in una struttura.la stessa cosa vale per l’illuminazione, la gestione complessiva centralizzata e remota prevista per gli impianti di illuminazione ordinaria, speciali e di sicurezza da la possibilità di ottimizzare l’uso e quindi i consumi. Per quel che riguarda la classe energetica complessiva l’involucro edilizio è classificabile in classe a. Utilizzo di sistemi energetici per mezzo di fonti rinnovabili E’ prevista la realizzazione di un impianto fotovoltaico (fv) della potenza di picco di 30 kwp dimensionato per il fabbisogno complessivo della struttura bar e servizi annessi, che grazie a ciò, risulterà in tal modo completamente indipendente. Altra fonte energetica da fonte rinnovabile è rappresentata con la previsione dell’installazione di impianto a pannelli solari a circolazione naturale, di superficie fino a 4 mq, per la produzione di acqua calda sanitaria destinata ai servizi igienici del teatro ed alla struttura bar annessa. La produzione giornaliera assicurata per la zona in esame è pari a circa 306 litri /giorno, che possono poi essere incrementati in futuro mediante altri pannelli e mantenuti mediante sistemi correlati.
 
Vedi gli altri progetti
 
Vai su
Invia una richiesta di lavoro a Tiziana Decaria
+ Allega file
Invia
 
Architetti vicino a te
Professionisti selezionati:
Cambia filtri
INVIA
Modifica filtri
Annulla
Chiedi un preventivo gratuito a Tiziana Decaria