Menu

Studiocasu Architettura Urbanistica Design

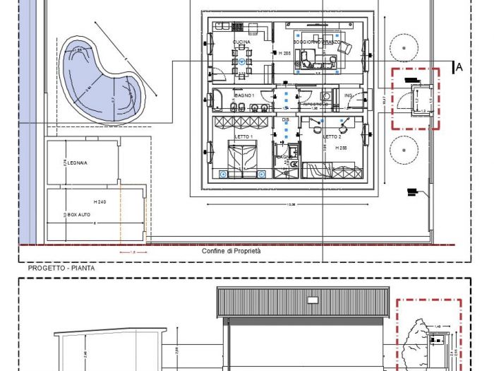
Ristrutturazione villa unifamiliare - Cremona (CR)

Numero di immagini
2
Visite ricevute
619
Like ricevuti
Ristrutturazione villa unifamiliare in provincia di cremona
 
Vedi gli altri progetti
 
Vai su
Invia una richiesta di lavoro a Studiocasu Architettura Urbanistica Design
+ Allega file
Invia
 
Architetti vicino a te
Professionisti selezionati:
Cambia filtri
INVIA
Modifica filtri
Annulla
Chiedi un preventivo gratuito a Studiocasu Architettura Urbanistica Design