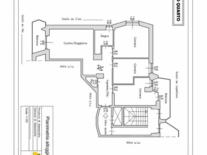
Non sempre servono grandi cantieri per trasformare una casa: spesso sono i piccoli interventi mirati a renderla più funzionale, moderna e accogliente.
In questo progetto abbiamo realizzato diverse opere:
???? ampliamento del bagno con la rimozione del vecchio ripostiglio,
???? controsoffittatura di ingresso e disimpegno per ordine, eleganza e nuova illuminazione,
???? sostituzione delle finestre per comfort ed efficienza energetica,
???? rimozione delle spallette interne per aprire gli ambienti e aumentarne la luminosità,
???? spostamento della cucina nell’ex soggiorno, creando un unico ambiente cucina–soggiorno, vero cuore della casa.
Interventi funzionali e mirati, studiati per trovare il giusto compromesso con le esigenze della committenza.
Un insieme di scelte “soft”, ma capaci di trasformare radicalmente la percezione degli spazi e migliorare la qualità della vita quotidiana. ????✨
Chiedi un preventivo gratuito aStudio Tecnico Associato Ivaldi Carrer
INFORMATIVA
Questo sito o gli strumenti terzi da questo utilizzati si avvalgono di cookie necessari al funzionamento ed utili alle finalità illustrate nella cookie policy. Se vuoi saperne di più o negare il consenso a tutti o ad alcuni cookie, consulta la cookie policy. Chiudendo questo banner, scorrendo questa pagina, cliccando su un link o proseguendo la navigazione in altra maniera, acconsenti all'uso dei cookie.