Menu

Studio Promenade Architecturale

Ristrutturazione_c23 - Locri (RC)

Numero di immagini
28
Visite ricevute
322
Like ricevuti
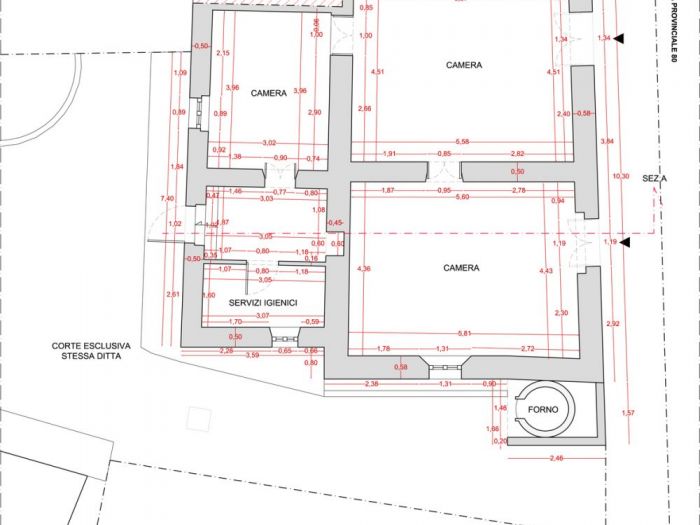
L'intervento di ristrutturazione ha interessato una piccola unità immobiliare situata in una zona tranquilla e periferica dell'abitato di locri. Il fabbricato, di vetusta costruzione, che presentava gravi ed evidenti patologie dovute alla mancata manutenzione e a importanti fenomeni infiltrativi, è stato completamente rinnovato, sia nell'attacco al cielo che nell'attacco a terra. E' stata sostituta la copertura, ormai fatiscente, con un nuovo tetto in legno di abete a capriate, l'attacco a terra è stato risanato tramite la realizzazione di un nuovo vespaio e conseguente posa del nuovo pavimento, tutte le murature sono state trattate e risanate dall'umidità e tutti gli impianti sono stati sostituiti con nuovi sistemi a norma di legge. La distribuzione interna, oramai inadeguata rispetto alle attuali esigenze della committenza, è stata ridisegnata compatibilmente con la natura costruttiva del fabbricato, integrando i servizi igienici e rimodulando spazi di connessione e spazi di utilizzo, realizzando la distribuzione utile all'utilizzo richiesto. Lo stile dell'unità è semplice e pulito, impreziosito da alcuni dettagli che riportano il sapore dell'antica costruzione, come gli infissi modanati con gli scuretti interni, i mattoncini in cotto del muro di confine, la copertura in coppi all'antica e il pavimento effetto pietra che dona all'ambiente la naturalità richiesta dalla committenza. Tutto l'insieme delle scelte, guidate dalle ispirazioni della committenza e dalle scelte tecniche, hanno contribuito a realizzare un piccolo rifugio rurale.
 
Vedi gli altri progetti
 
Vai su
Invia una richiesta di lavoro a Studio Promenade Architecturale
+ Allega file
Invia
 
Architetti vicino a te
Professionisti selezionati:
Cambia filtri
INVIA
Modifica filtri
Annulla
Chiedi un preventivo gratuito a Studio Promenade Architecturale