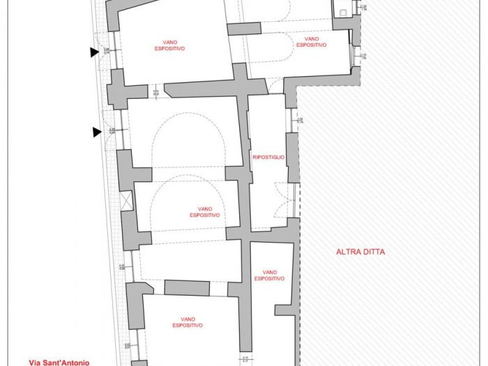
L'intervento ha riqualificato i locali di un immobile del centro storico di cittanova, attraverso un percorso improntato sulla ricerca degli elementi di pregio e sul recupero dei segni storici che caratterizzano i palazzi dell’epoca assimilabili al palazzo in questione. Il progetto in facciata si è incentrato sull’enfatizzazione del primo registro del fabbricato, facendolo emergere come basamento che, rafforzandosi, acquista un suo carattere proprio, valorizzando l’intera costruzione. Si inserisce in questo percorso progettuale di valorizzazione dell’edificio, la riqualificazione energetica dello stesso, attraverso un intervento di miglioramento tecnologico-funzionale al fine di un ottimale contenimento energetico.
Chiedi un preventivo gratuito aStudio Promenade Architecturale
INFORMATIVA
Questo sito o gli strumenti terzi da questo utilizzati si avvalgono di cookie necessari al funzionamento ed utili alle finalità illustrate nella cookie policy. Se vuoi saperne di più o negare il consenso a tutti o ad alcuni cookie, consulta la cookie policy. Chiudendo questo banner, scorrendo questa pagina, cliccando su un link o proseguendo la navigazione in altra maniera, acconsenti all'uso dei cookie.