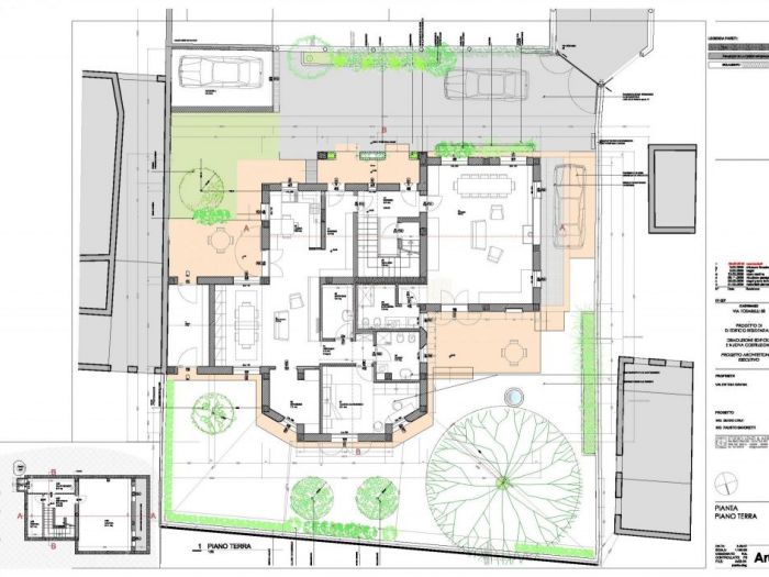
Progetto di demolizione e ricostruzione di un'abitazione per due unità immobiliari. Il lotto intercluso richiede numerose accortezze per realizzare l'intero progetto. Alcune soluzioni di accostamento volumi consentono spazi privati e angoli molto godibili per la residenza.
Chiedi un preventivo gratuito aStudio Lenzi & Associati
INFORMATIVA
Questo sito o gli strumenti terzi da questo utilizzati si avvalgono di cookie necessari al funzionamento ed utili alle finalità illustrate nella cookie policy. Se vuoi saperne di più o negare il consenso a tutti o ad alcuni cookie, consulta la cookie policy. Chiudendo questo banner, scorrendo questa pagina, cliccando su un link o proseguendo la navigazione in altra maniera, acconsenti all'uso dei cookie.