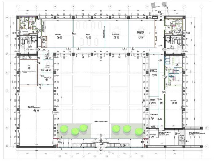
Progetto per la sede uffici, progettazione, laboratori e magazzino del produttore di abbigliamento sportivo macron. Un complesso iconico e innovativo per l'uso della luce e degli spazi.
Chiedi un preventivo gratuito aStudio Lenzi & Associati
INFORMATIVA
Questo sito o gli strumenti terzi da questo utilizzati si avvalgono di cookie necessari al funzionamento ed utili alle finalità illustrate nella cookie policy. Se vuoi saperne di più o negare il consenso a tutti o ad alcuni cookie, consulta la cookie policy. Chiudendo questo banner, scorrendo questa pagina, cliccando su un link o proseguendo la navigazione in altra maniera, acconsenti all'uso dei cookie.