Complesso residenziale di via caselle - San Lazzaro di Savena (BO)
20
423
0
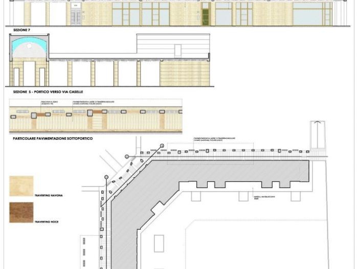
Progetto per un complesso abitativo e per negozi e uffici. La distinzione fra pubblico e privato con la realizzazione del porticato e del giardino interno, la parte bassa verso gli edifici esistenti, l'accento verticale della soluzione d'angolo, fanno di questo edificio un pezzo di nuova città.
Chiedi un preventivo gratuito aStudio Lenzi & Associati
INFORMATIVA
Questo sito o gli strumenti terzi da questo utilizzati si avvalgono di cookie necessari al funzionamento ed utili alle finalità illustrate nella cookie policy. Se vuoi saperne di più o negare il consenso a tutti o ad alcuni cookie, consulta la cookie policy. Chiudendo questo banner, scorrendo questa pagina, cliccando su un link o proseguendo la navigazione in altra maniera, acconsenti all'uso dei cookie.