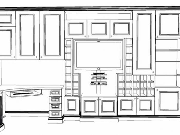
Arredamento boiserie con alternativa tra biocamino e casellario cd. La boiserie è un pannello in legno che può rivestire le pareti parzialmente o fino al soffitto. Questi pannelli sono rifiniti da una cornice che li rende particolarmente elegante. La boiserie può definire un arredamento moderno ed un arredamento classico. Questo soggiorno che stiamo realizzando in provincia di bologna è caratterizzato da una boiserie bianca fino al soffitto e relative librerie con lo stesso design. Divano tavolo e sedie contrastano fortemente, così come il pavimento in marmo nero, creando un ambiente elegante e moderno. Un arredamento luxury a bologna. Arredamento su misura a bologna con un' immagine classica adattata all' arredamento moderno. Questo tipo di progettazione la trovate nel nostro show-room di arredamento a bologna.
Chiedi un preventivo gratuito aStudio Interior Design Berti Daniela srl
INFORMATIVA
Questo sito o gli strumenti terzi da questo utilizzati si avvalgono di cookie necessari al funzionamento ed utili alle finalità illustrate nella cookie policy. Se vuoi saperne di più o negare il consenso a tutti o ad alcuni cookie, consulta la cookie policy. Chiudendo questo banner, scorrendo questa pagina, cliccando su un link o proseguendo la navigazione in altra maniera, acconsenti all'uso dei cookie.