Menu

Studio Ferretti

Studio tatuaggi - Pescara (PE)

Numero di immagini
38
Visite ricevute
1.1K
Like ricevuti
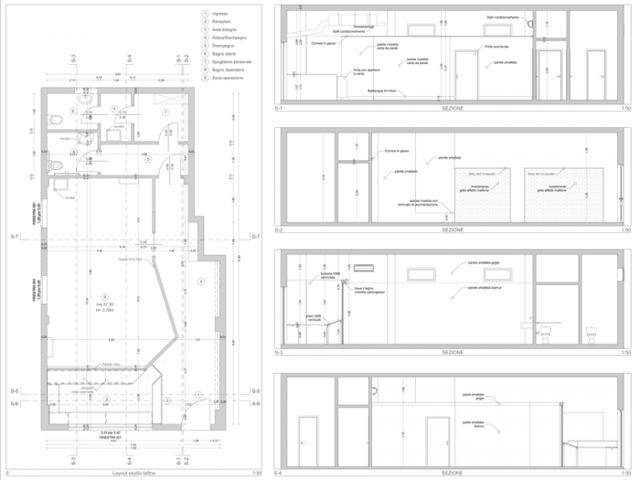
Ristrutturazione spazio commerciale per accogliere nuovo studio tattoo Il corpo è la messa in scena di se stesso, e si distingue attraverso un sistema complesso di segni estetizzanti: come i tatuaggi che coprono ed esaltano la nudità rendendola unica. Il tatuaggio è arte. I bozzetti, primi disegni che il tatuatore realizza, sono il centro della sua espressione artistica. La creazione realizzata verrà poi resa indelebile sulla pelle. La fase creativa di questo lavoro è dominante espressione dello stile che identifica ogni singolo tatuatore. Su questo pensiero si fonda l’organizzazione spaziale dello studio, che lo ha reso permeabile, portando in vetrina lo spazio dedicato ai bozzetti, dando così la possibilità a chi passeggia di vedere all'opera il "disegnatore". Entrando appare chiara l’articolazione degli spazi: a sinistra l'area dedicato al disegno che, già visibile dall’esterno, in prossimità dell'ingresso si modifica in altezza e diventa la reception per accogliere i clienti; a seguire una piccola area di attesa trova spazio lungo il corridoio che porta alla sala operazioni e ai locali di servizio. Lo studio presenta ampia vetrina su strada ma poche finestre interne: i setti divisori non sono quindi stati portati a soffitto e con l’inserimento di un'ampia vetrata (che divide l'area disegno dalla sala operazioni) si è riusciti a catturare, anche negli spazi retrostanti, quanta più luce possibile.
 
Vedi gli altri progetti
 
Vai su
Invia una richiesta di lavoro a Studio Ferretti
+ Allega file
Invia
 
Architetti vicino a te
Professionisti selezionati:
Cambia filtri
INVIA
Modifica filtri
Annulla
Chiedi un preventivo gratuito a Studio Ferretti