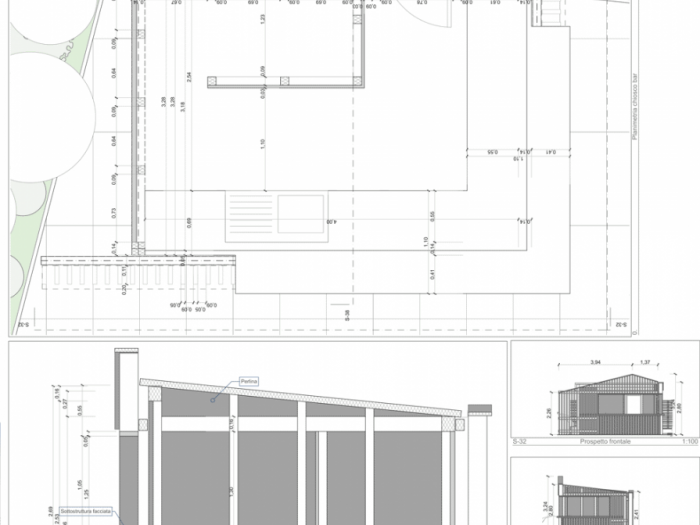
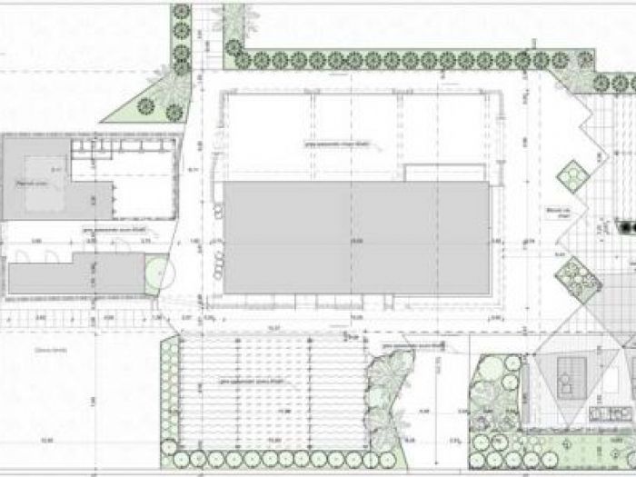
Completa riqualificazione e ammodernamento lido balneare "aurora", oggi "ippobeach" pescara.
Il lido aurora venne realizzato nel 1971, rinnovato in parte nel 1993 e successivamente nel 1999. Nell'anno 2014 la proprietà dello stabilimento viene trasferita, la nuova direzione del lido decide di rinnovare completamente la struttura con un’ importante opera di riqualificazione che coinvolge, oltre ai volumi del fabbricato principale, percorsi, aree gioco, spazio di ristoro, la spiaggia e l'intera zona a verde. Vengono così ripensati tutti gli spazi e le loro interazioni.
Lido aurora prima dei lavori di riqualificazione (gennaio 2015)
Questo sito o gli strumenti terzi da questo utilizzati si avvalgono di cookie necessari al funzionamento ed utili alle finalità illustrate nella cookie policy. Se vuoi saperne di più o negare il consenso a tutti o ad alcuni cookie, consulta la cookie policy. Chiudendo questo banner, scorrendo questa pagina, cliccando su un link o proseguendo la navigazione in altra maniera, acconsenti all'uso dei cookie.