Menu

Studio Ferretti

Stabilimento balneare ippocampo - Pescara (PE)

Numero di immagini
36
Visite ricevute
1.3K
Like ricevuti
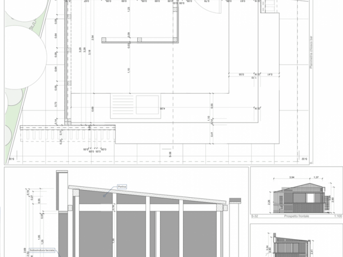
Completa riqualificazione e ammodernamento lido balneare "aurora", oggi "ippobeach" pescara. Il lido aurora venne realizzato nel 1971, rinnovato in parte nel 1993 e successivamente nel 1999. Nell'anno 2014 la proprietà dello stabilimento viene trasferita, la nuova direzione del lido decide di rinnovare completamente la struttura con un’ importante opera di riqualificazione che coinvolge, oltre ai volumi del fabbricato principale, percorsi, aree gioco, spazio di ristoro, la spiaggia e l'intera zona a verde. Vengono così ripensati tutti gli spazi e le loro interazioni. Lo stabilimento balneare rinnova nome e carattere, offrendo servizi inediti. Si amplia in questo modo l'offerta di intrattenimento e vengono predisposte differenti aree di ristorazione suddivise per tipologia: area colazione/aperitivo su pavimentazione, area aperitivo su arenile con un carattere più suggestivo ed informale, area giochi bimbi ed area sportivo/ricreativa con annessi locali ad uso servizi, il tutto circondato da un verde scelto per offrire il massimo comfort. "ippocampo playa segunda", questo è il nuovo nome dell'attività, si compone di due volumi: a nord il corpo di servizio ospita bagni, docce e locali ad esclusivo uso del personale, a sud il volume principale che accoglie le cucine e tutti gli spazi di lavoro, mentre “en plein air”, a volte solo ombreggiate ed in alcuni casi coperte da pergolati, trovano spazio le zone di interazione aperte al pubblico. Il primo obiettivo di progetto era quello di eliminare la frammentazione di questi volumi e, nel ricucirli, dare una nuova veste allo stabilimento. Giocare sul termine “veste” ha come obbiettivo quello di fornire una chiave di lettura di quanto realizzato: il vestito o ancora meglio, la nuova pelle, che andrà a ricoprire i volumi, sarà una quinta scenica per mantenere la memoria dell'esistente ma al contempo, fornire una nuova “visione d'insieme”. La suggestione? Esattamente quella di aver creato un nuovo complesso ma con un minimo investimento. Si potrebbe parlare di una vera e propria scenografia allo scopo di conferire monumentalità e allo stesso tempo migliorare il comfort termico garantendo una naturale ombreggiatura. Da non trascurare è proprio il valore aggiunto che può dare un intervento sull'involucro dell'edificio tale da consentire di rinnovarne completamente l'immagine. Possiamo parlare di una valorizzazione del patrimonio esistente che è molto di più di un restauro conservativo: la pelle dell'edificio è l'elemento principale sul quale si agisce con un progetto di questo tipo; è il filtro tra interno ed esterno. Inoltre più la pelle è performante, meno si deve lavorare sulle prestazioni degli impianti all'interno degli edifici. Il rivestimento esterno, oltre all’effetto decorativo ha infatti una funzione protettiva della struttura da pioggia, grandine, neve e dai raggi uv. La scelta del legno è stata determinata anche dalle ottime qualità meccanico-fisiche che portano questo materiale ad essere adatto come elemento costruttivo durevole, naturale, tradizionale ed universale. Il legno essendo un materiale naturale è soggetto al processo d’invecchiamento. E proprio per questo è stata importante anche la scelta del suo trattamento, soprattutto in funzione del fatto che il legno di abete, che verrà impiegato per contenere quanto più possibile i costi di intervento, non ha le caratteristiche di un legno particolarmente resistente (come potrebbe essere il larice) e pertanto và protetto con prodotti specifici. Definita l’essenza, si è poi deciso di impiegare listelli in legno lamellare: questi presentano infatti caratteristiche di omogeneità ed uniformità di resistenza superiore alla corrispondente essenza legnosa, nonché un migliore sfruttamento della materia prima con minore scarto di materiale, che diventa sempre più raro e costoso sul mercato mondiale. Diviene quindi una scelta naturale per una edilizia sostenibile. In effetti la decisione di impiegare questo materiale è scaturita in primo luogo dal desiderio di instaurare un rapporto armonico tra l’edificio e il contesto in cui è inserito: “un edificio dovrebbe apparire come se sorgesse spontaneamente dal terreno dove è situato …”. Il principio wrightiano è stato esteso anche ai complementi di arredo che saranno parte integrante ed organica dell’edificio, realizzati su disegno con materiale di recupero. Ci troviamo infatti a ridosso della pineta dannunziana una riserva naturale che si trova nella zona meridionale della città di pescara. L'attuale area della riserva occupa una porzione del vasto territorio che nei secoli è stato coperto da un'ininterrotta serie di pinete e dalla macchia mediterranea che si estendevano per la parte litoranea di tutto l'attuale territorio della città. Del resto, prima del xix secolo, tutto il litorale adriatico limitrofo era ricoperto da pinete e macchia mediterranea e così dal sud, dall’attuale comune di francavilla al mare (ch) fino a nord, nella zona meridionale delle marche. L’urbanizzazione di queste aree ha interrotto la continuità di questa macchia e delle pinete. Nell'intento di proteggere l’ultima grande pineta nel territorio pescarese, la regione abruzzo, con l.r. 96/00 e l.r. 19/01 ha istituito l’attuale riserva naturale che si estende per una superficie di 53 ettari circa, di cui solo 35 restano dell’antica selva. Prima di definire il masterplan si sono susseguiti molteplici impianti distributivi che di volta in volta sono stati stralciati per sottostare ai numerosi vincoli di piano (pan) a cui l'area è soggetta e per ottenere il miglior compromesso fra aspetto e funzione. In questi cambiamenti la zona ludico/sportiva e dei servizi è stata raccolta, così che la clientela possa fruire di docce e servizi senza interferire con le aree di ristorazione. Questo ha inoltre permesso di preservare il più possibile le stesse da un fastidioso inquinamento acustico e luminoso. Intervenire riqualificando la struttura esistente, muovendosi in una area interessata da importanti vincoli, di piano che ne limitavano in misura consistente le soluzioni percorribili, è stato il primo grande ostacolo. Ma questo affiancato dalla necessità di contenere al massimo i costi, si è trasformato in uno stimolo continuo che ha permesso di raggiungere gli obbiettivi inizialmente stabiliti con la committenza.
 
Vedi gli altri progetti
 
Vai su
Invia una richiesta di lavoro a Studio Ferretti
+ Allega file
Invia
 
Architetti vicino a te
Professionisti selezionati:
Cambia filtri
INVIA
Modifica filtri
Annulla
Chiedi un preventivo gratuito a Studio Ferretti