Menu

Studio Ferretti

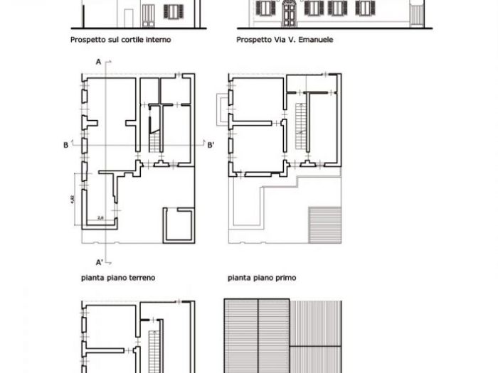
Ristrutturazione fabbricato - Pescara (PE)

Numero di immagini
4
Visite ricevute
428
Like ricevuti
Ristrutturazione residenza privata e realizzazione nuovo box auto.
 
Vedi gli altri progetti
 
Vai su
Invia una richiesta di lavoro a Studio Ferretti
+ Allega file
Invia
 
Architetti vicino a te
Professionisti selezionati:
Cambia filtri
INVIA
Modifica filtri
Annulla
Chiedi un preventivo gratuito a Studio Ferretti