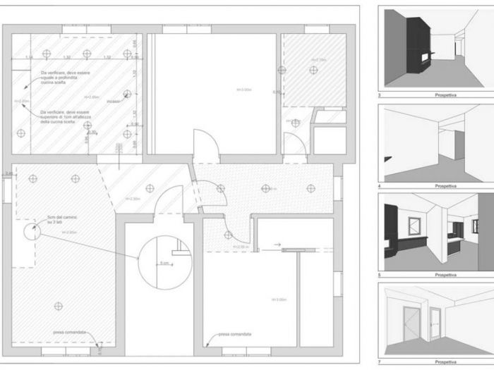
Ristrutturazione appartamento in bifamiliare - Pescara (PE)
17
764
5
Appartamento completamente rinnovato a partire da una nuova distribuzione più funzionale alle esigenze della committenza. Il focus è stato ottimizzare le risorse partendo dall’obiettivo di realizzare un’ampia zona living e una cabina armadio a servizio della camera padronale. L'uso di tinte avvolgenti e la posa di un piacevole pavimento laminato hanno reso gli ambienti intimi e accoglienti.
Questo sito o gli strumenti terzi da questo utilizzati si avvalgono di cookie necessari al funzionamento ed utili alle finalità illustrate nella cookie policy. Se vuoi saperne di più o negare il consenso a tutti o ad alcuni cookie, consulta la cookie policy. Chiudendo questo banner, scorrendo questa pagina, cliccando su un link o proseguendo la navigazione in altra maniera, acconsenti all'uso dei cookie.