Completa ristrutturazione con nuova distribuzione piccolo appartamento residenziale
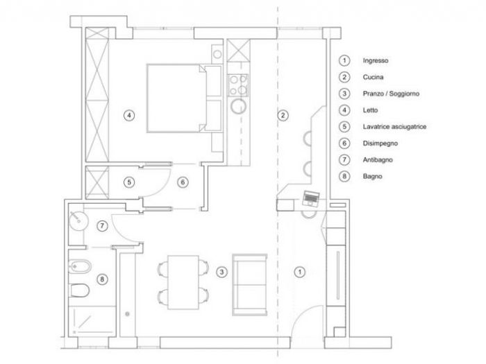
L'appartamento, che vede l'affaccio principale orientato a nord e le finestre retrostanti insistere su di un pozzo di luce, non essendo molto luminoso richiedeva uno sviluppo longitudinale: unico imperativo per migliorare l'apporto di luce e areazione.
Questo sito o gli strumenti terzi da questo utilizzati si avvalgono di cookie necessari al funzionamento ed utili alle finalità illustrate nella cookie policy. Se vuoi saperne di più o negare il consenso a tutti o ad alcuni cookie, consulta la cookie policy. Chiudendo questo banner, scorrendo questa pagina, cliccando su un link o proseguendo la navigazione in altra maniera, acconsenti all'uso dei cookie.