Menu

Studio Ferretti

Recupero di un casale - Pescara (PE)

Numero di immagini
9
Visite ricevute
573
Like ricevuti
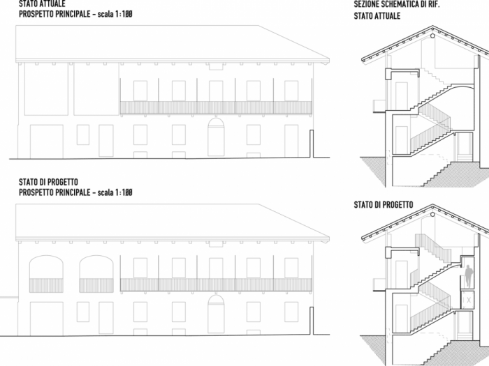
Studio preliminare per il recupero di un casale, un rustico da rinnovare. C’è sempre un po’ di fascino in un vecchio fabbricato e sempre un po’ di emozione al momento dell’acquisto. Un frammento di storia e del passato diventa nostro e mette in moto la fantasia. Come rendere ancora più speciale la nostra abitazione? Da qui nascono alcuni studi preliminari per la sua ristrutturazione che centrando obiettivi precisi (quelli dei nostri giovani committenti), trasformano un’abitazione dalla suddivisione convenzionale. Il punto di partenza è un impianto tradizionale, tipico di vecchi edifici rustici ai margini dell’abitato, che presenta diverse problematiche: prima fra tutte l’assenza di un impianto distributivo: due grandi camere separate da una solida scala in pietra. La necessità è però quella di ricavare diversi ambienti, dalle dimensioni più modeste, che permettano una migliore fruizione degli spazi e di far fronte alle esigenze della quotidianità. Viene così ricavata una zona di servizio nella porzione rustica della casa, sottostante il fienile (che per il momento verrà adibito a terrazzo grazie alla realizzazione di due grandi aperture ad arco nel rispetto dell’antica tipologia edilizia), che ospiterà la lavanderia e la tavernetta. L’abitazione vera e propria vedrà poi ricavati sul retro, esposti a nord, i bagni, la cabina armadio e il disimpegno a ponte, piccolo espediente studiato per meglio articolare la distribuzione degli spazi. Sospeso sul primo pianerottolo del vano scala (grazie alle ampie dimensioni di quest’ultimo) viene a dare un contributo scenografico, rivisitando in chiave moderna il tipo tradizionale, e permettendo anche di non penalizzare l’affaccio principale sul meraviglioso giardino che verrà riservato a cucina, soggiorno "camerette" bimbi/ospiti e alla camera da letto padronale dotata anche di ampio terrazzo privato.
 
Vedi gli altri progetti
 
Vai su
Invia una richiesta di lavoro a Studio Ferretti
+ Allega file
Invia
 
Architetti vicino a te
Professionisti selezionati:
Cambia filtri
INVIA
Modifica filtri
Annulla
Chiedi un preventivo gratuito a Studio Ferretti