Uno spazio prima adibito ad un negozio viene trasformato in ufficio dedicato al settore immobiliare
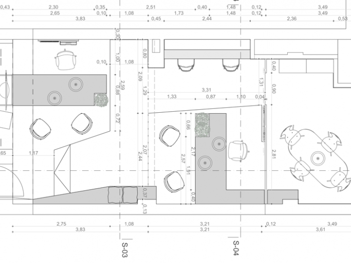
Il locale, che precedentemente ospitava una boutique di abbigliamento, affaccia tramite ampia vetrina, su di una strada dal rilevante flusso pedonale. Il progetto riqualifica questo spazio in previsione dell'insediamento di una nuova attività dedicata al settore immobiliare. La necessità, seppur considerate le modeste dimensioni dell'ambiente, era quella di ricavare:
Due postazioni per operatori con scrivanie e poltroncine accoglienza clientela
Due postazioni progettisti
Box riunioni
Zona attesa.
L'intero intervento è stato ideato "low cost" lavorando materiali poveri cercando di dare forma ad un progetto concentrato nel privilegiare la "visione d'insieme" al singolo dettaglio.
Ultimate così le poche lavorazioni edili, tutti gli arredi verranno realizzati a partire dalla lavorazione di lastre di "osb" che verranno successivamente verniciate e trattate seguendo un abaco di colori naturali in accordo con l'immagine coordinata dell'immobiliare.
Questo sito o gli strumenti terzi da questo utilizzati si avvalgono di cookie necessari al funzionamento ed utili alle finalità illustrate nella cookie policy. Se vuoi saperne di più o negare il consenso a tutti o ad alcuni cookie, consulta la cookie policy. Chiudendo questo banner, scorrendo questa pagina, cliccando su un link o proseguendo la navigazione in altra maniera, acconsenti all'uso dei cookie.