Menu

Studio Ferretti

Piccolo appartamento rinnovato a pescara - Pescara (PE)

Numero di immagini
27
Visite ricevute
772
Like ricevuti
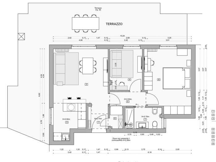
Una ristrutturazione completa di un piccolo appartamento residenziale nel cuore di pescara. L'appartamento, di dimensioni contenute, è circondato da un ampio terrazzo che abbraccia su due lati la zona di soggiorno, cuore della casa. Questo spazio è un unico ambiente sul quale gravità anche la zona d'ingresso; le differenti altezze degli spazi ne identificano la differenti funzioni. La parete corta, sul lato d'ingresso, è stata funzionalizzata con l’installazione di piccole mensole e utilizzata come svuotatasche, mentre quella lunga, grazie all'utilizzo della carta da parati e delle aperture a raso, si presenta solida e continua conferendo maggiore respiro all'ambiente. L'area dedicata alla cucina è stata ribassata, permettendo la lettura di un ambiente separato nonostante la contiguità degli spazi. La zona pranzo accede all'ampio terrazzo grazie ad una finestra scorrevole. In tal modo si è reso maggiormente permeabile l'esterno che, senza l'ingombro del serramento, invita (nelle belle giornate) all'utilizzo del terrazzo come spazio pranzo all'aperto. Un unico disimpegno ha il compito di fare da filtro. Su di esso si affacciano un’ampia camera da letto matrimoniale, il bagno e un piccolo studiolo che, all'occorrenza, può trasformarsi in camera grazie ad un comodo divano letto. L'impiantistica della casa è completata dalla centralizzazione delle avvolgibili e dalla climatizzazione, completamente canalizzata, al servizio di tutti i locali.
 
Vedi gli altri progetti
 
Vai su
Invia una richiesta di lavoro a Studio Ferretti
+ Allega file
Invia
 
Architetti vicino a te
Professionisti selezionati:
Cambia filtri
INVIA
Modifica filtri
Annulla
Chiedi un preventivo gratuito a Studio Ferretti