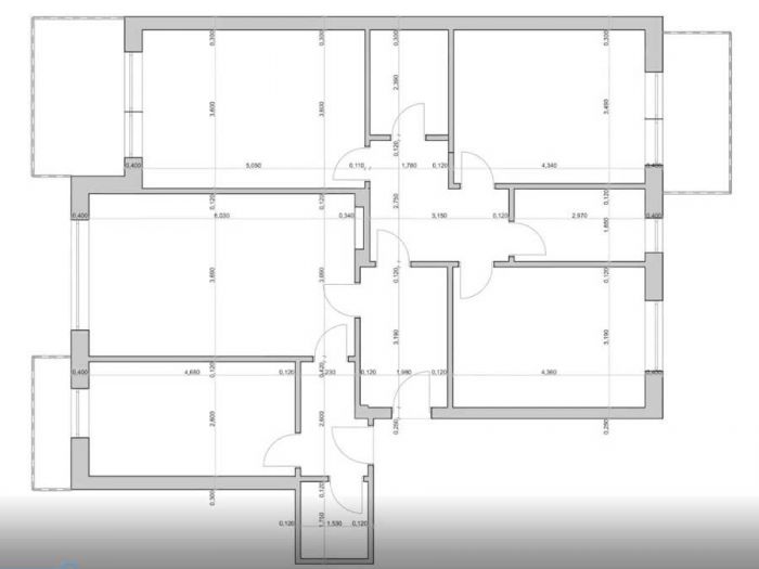
Soluzione di progetto con nuova distribuzione degli spazi di soggiorno per ottenere un ambiente luminoso e confortevole con una moderna cucina a vista studiata però per proteggere dall'osservatore l'area di lavoro che spesso può non essere in ordine. La ristrutturazione di questo appartamento a pescara prevede una nuova distribuzione degli spazi e il rifacimento completo dell'impiantistica.
Questo sito o gli strumenti terzi da questo utilizzati si avvalgono di cookie necessari al funzionamento ed utili alle finalità illustrate nella cookie policy. Se vuoi saperne di più o negare il consenso a tutti o ad alcuni cookie, consulta la cookie policy. Chiudendo questo banner, scorrendo questa pagina, cliccando su un link o proseguendo la navigazione in altra maniera, acconsenti all'uso dei cookie.