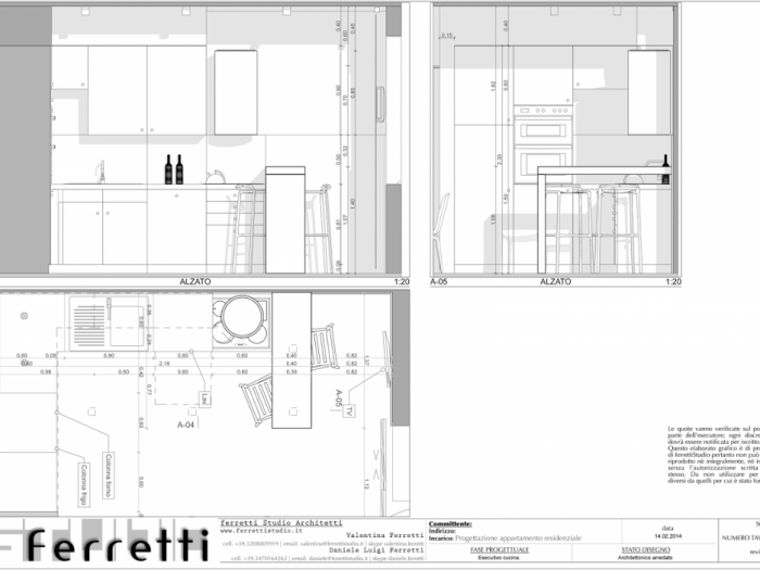
Progettazione e arredamento nuovo appartamento in fabbricato residenziale esistente.
L'incarico interessa la completa progettazione di un appartamento residenziale posto al secondo livello di un edificio di 3 piani fuori terra collocato in una zona semi-urbana. L'immobile nella sua interezza è ultimato ed abitato solo per primi due piani, mentre l'oggetto di intervento è ultimato per la sola parte strutturale; il progetto interesserà quindi l'architettonico, l'arredo e tutte le soluzioni di dettaglio dalla domotica alle soluzioni impiantistiche.
L'edificio è in muratura portante. La prima planimetria presentata mostra la situazione attuale.
Questo sito o gli strumenti terzi da questo utilizzati si avvalgono di cookie necessari al funzionamento ed utili alle finalità illustrate nella cookie policy. Se vuoi saperne di più o negare il consenso a tutti o ad alcuni cookie, consulta la cookie policy. Chiudendo questo banner, scorrendo questa pagina, cliccando su un link o proseguendo la navigazione in altra maniera, acconsenti all'uso dei cookie.