"una giovane coppia in cerca di spazio... ..la famiglia cresce!"
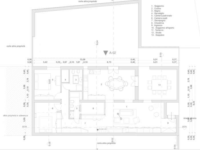
Il progetto parte dalla necessità di ampliare un edificio uni-famigliare esistente al fine di creare nuovi spazi per una giovane coppia la cui famiglia si sta allargando. L'attuale proprietà si sviluppa su di un solo livello ed è costituita da un fabbricato ad un solo piano fuori terra affacciato su un cortile privato e recintato. L'ampliamento proposto insiste su di un terreno in fase di acquisizione posto sul retro dell’edificio esistente e prevede la realizzazione di un nuovo volume, in parte a doppia altezza, con porzione di tetto terrazzata e chiostrina. Obiettivo fondamentale era quello di creare una seconda camera da letto e ampliare la zona giorno troppo congestionata tenendo presente l’impossibilità di aprire nuove finestrature sulle proprietà a confine.
Particolare attenzione è stata posta al sistema dei “vuoti”, trattati come spazi intermedi semiaperti che ottimizzano le prestazioni differenziate in base alle stagioni. Tra questi la chiostrina che permette di dare aerazione agli spazi di servizio e illuminazione naturale alla zona giorno, diventando elemento centrale attorno al quale ruota il nuovo sistema distributivo.
Questo sito o gli strumenti terzi da questo utilizzati si avvalgono di cookie necessari al funzionamento ed utili alle finalità illustrate nella cookie policy. Se vuoi saperne di più o negare il consenso a tutti o ad alcuni cookie, consulta la cookie policy. Chiudendo questo banner, scorrendo questa pagina, cliccando su un link o proseguendo la navigazione in altra maniera, acconsenti all'uso dei cookie.