Menu

Studio Di Architettura Mamino

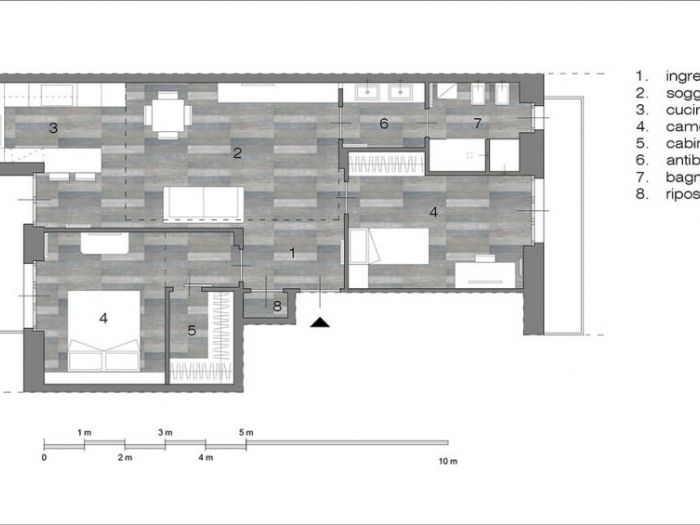
Ristrutturazione appartamento bra 2 - Bra (CN)

Numero di immagini
5
Visite ricevute
570
Like ricevuti
Ristrutturazione appartamento bra 2016
 
Vedi gli altri progetti
 
Vai su
Invia una richiesta di lavoro a Studio Di Architettura Mamino
+ Allega file
Invia
 
Architetti vicino a te
Professionisti selezionati:
Cambia filtri
INVIA
Modifica filtri
Annulla
Chiedi un preventivo gratuito a Studio Di Architettura Mamino