Menu

Soa Spazio Oltre Larchitettura

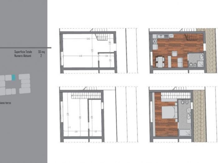
Recupero e ampliamento di un isolato - Catania (CT)

Numero di immagini
24
Visite ricevute
614
Like ricevuti
Nel progetto si propone da un lato il recupero dell' esistente, dall'altro la creazione ex novo di un blocco di nuove residenze collettive, che si innesta sul preesistente. Lo scopo è creare un'architettura che si confronti con le preesistenze lavorando per analogia, non negando l'edificio esistente, ma riproponendolo per far fronte alle nuove dinamiche del vivere contemporaneo. L' isolato appartenente al tessuto ottocentesco di espansione, si trova al limite con l'area post sventramento, ed è, quindi, strategico per il confronto del tessuto storico con il progetto contemporaneo previsto sui “vuoti“. Le “mensole della speranza”, che rappresentano l'incompiutezza del progetto, sono spunto per completare l'edificio esistente con un volume che si poggia idealmente su esse. Il nuovo blocco appare continuo e regolare, ma la sua rigidità viene contrastata dal trattamento dell'involucro che dona all'edificio totale flessibilità e forte identità rispetto al contesto. L'aumento di volume viene smentito dal gioco di pieni e vuoti delle logge, che prolungano lo spazio interno creando una dimensione semiprivata. Caratteristica del progetto è la versatilità: l'introduzione del ballatoio consente totale libertà nella distribuzione degli accessi agli alloggi. Gli appartamenti sono progettati per lasciare agli abitanti la massima libertà di vivere gli ambienti secondo le proprie abitudini; la presenza di spazi flessibili e personalizzabili asseconda le esigenze della società contemporanea. Fondamentale è la capacità di adattarsi a condizioni mutevoli nel tempo, gli alloggi sono, infatti, pensati per poter essere aggregati in funzione dell’evoluzione del nucleo familiare.
 
Vedi gli altri progetti
 
Vai su
Invia una richiesta di lavoro a Soa Spazio Oltre Larchitettura
+ Allega file
Invia
 
Architetti vicino a te
Professionisti selezionati:
Cambia filtri
INVIA
Modifica filtri
Annulla
Chiedi un preventivo gratuito a Soa Spazio Oltre Larchitettura