Il contesto è la campagna romana. In questa fotografia c'è una piccola capanna nel centro di una terra che orla il destino del progetto e crea un'atmosfera evocativa.
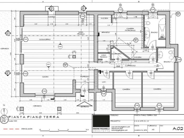
Da molto tempo l'idea era quella di creare una configurazione più comoda per le aree viventi. Il bisogno per spazi più larghi ed una migliore qualità complessiva del loro habitat ha colpito le decisioni preliminari che hanno condotto alla creazione di un spazio aperto dove la cucina è unita col soggiorno.
Inoltre, tre aperture sono state allargate per annebbiare i confini tra gli interni e gli spazi esteriori verso il giardino ed una biblioteca enorme è progettò per creare una più calda vista ambo da in e fuori.
Questo sito o gli strumenti terzi da questo utilizzati si avvalgono di cookie necessari al funzionamento ed utili alle finalità illustrate nella cookie policy. Se vuoi saperne di più o negare il consenso a tutti o ad alcuni cookie, consulta la cookie policy. Chiudendo questo banner, scorrendo questa pagina, cliccando su un link o proseguendo la navigazione in altra maniera, acconsenti all'uso dei cookie.