Menu

Sebastiano Cossai

Lp house (naples) - 2013 - Napoli (NA)

Numero di immagini
9
Visite ricevute
666
Like ricevuti
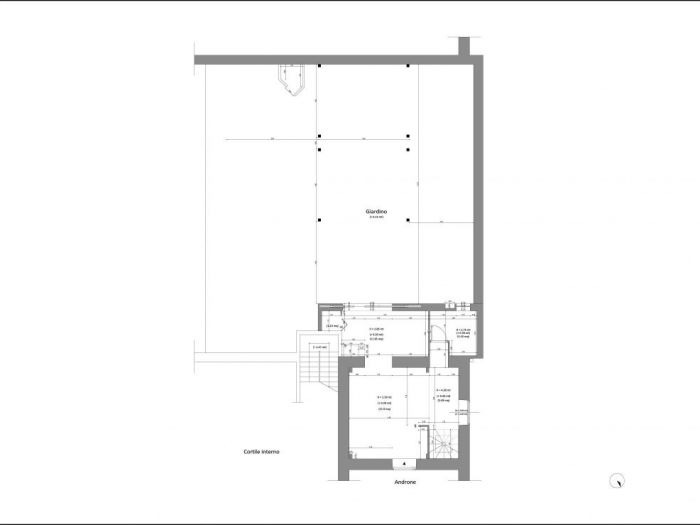
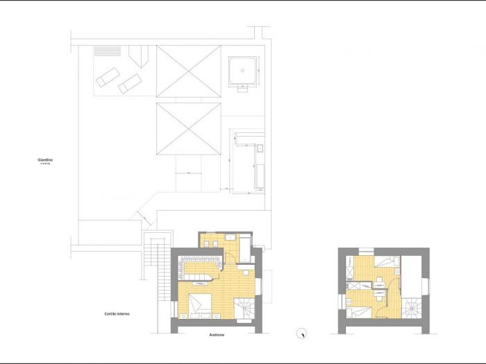
Oggetto | ristrutturazione & interior design Stato dei luoghi La struttura su cui si richiede l’intervento è costituita da due appartamenti distinti, accessibili da altrettanti ingressi separati e sovrapposti verticalmente. La richiesta primaria riguarda l’accorpamento dei suddetti immobili, a cui si è provveduto mediante apposita correzione catastale operata dal tecnico incaricato. Lo stato dei luoghi presenta una condizione fatiscente e si richiede un’importante intervento di recupero delle strutture esistenti, appartenenti ad un edificio di vecchia costruzione. L’appartamento del piano terreno è caratterizzato da una altezza di 4,50 mt e un’area di circa 30 mq, per quanto riguarda il corpo principale, mentre il corpo contiguo che si affaccia sul giardino esterno, profondo 13,20 mt, presenta un disimpegno che serve un piccolo bagno e da sul giardino da cui è possibile accedere al locale/deposito. Tale corpo possiede un’altezza di 2,75 mt. L’appartamento del piano superiore, caratterizzato da una altezza di 3,80 mt e accessibile dalla scala comune interna all’edificio, presenta un’area simile nel corpo centrale, circa 30 mq, mentre il corpo aggettante che grosso modo ricalca quello sottostante presenta un’area di circa 4,60 mq e assolve alle funzioni di cucina e bagno. Soluzione progettuale La soluzione progettuale individuata muove dall’esigenza della committenza di ricavare spazio sufficiente per due camerette. La situazione originaria richiede un adeguamento spaziale atto da un lato a separare nettamente zona giorno da zona notte e dall’altro a sfruttare le altezze sovradimensionate per ricavare spazio sufficiente per un soppalco al piano inferiore, mettendo tra l’altro in comunicazione l’interno con l’esterno per usufruire dello spazio naturale esistente e incanalare la luce naturale necessaria per un’adeguata illuminazione del nuovo ambiente living immaginato. Inoltre si presenta la necessità di individuare un corpo scala apposito che faccia da elemento di collegamento per i vari livelli. Il livello inferiore, ora vero cuore della casa, è ripensato come zona giorno attraverso l’evidenziazione di una zona soppalcata sotto cui disporre un’area relax e una pranzo, messa in comunicazione con l’ambiente esterno (ripensato come una cucina e in cui è ricavata una piccola lavanderia) mediante una bucatura di 1,50 mt di larghezza per 2,40 mt di altezza che ricalca quella presente in cucina che si protrae ulteriormente verso sinistra dando accesso al giardino. Tale assialità crea un effetto visivo unico e consente la comunicazione e la compenetrazione dell’esterno verso l’interno e viceversa. L’area precedentemente utilizzata quale disimpegno per i servizi e per l’accesso al giardino è ora chiusa verso l’esterno, permettendo così l’aumento di superficie calpestabile nell’ambiente bagno. La scala è collocata a destra della porta d’ingresso, e schermata da apposita nicchia in muratura colmata da un ampio armadio di servizio. La realizzazione del soppalco permette di ricavare due camere per ragazzi, accessibili tramite disimpegno, di dimensioni adeguate e ottimamente illuminate ed areate grazie alla realizzazione di finestre che danno verso l’esterno e verso l’interno sulla zona a doppia altezza. La scala smonta sul piano superiore, ora camera padronale. L’ampia metratura consente la creazione di una cabina armadio e l’ampliamento del bagno padronale. Un gioco di controsoffitti su due altezze consente l’identificazione di due zone distinte: una dedicata al letto, evidenziata da un controsoffitto a 3 metri di altezza; una di disimpegno verso il bagno e la cabina armadio, con controsoffitto a 3,3 mt. Soluzioni tecniche Il principale intervento strutturale riguarda il rinforzamento delle mura perimetrali e il rifacimento del solaio. La bucatura verso l’esterno è resa possibile con il posizionamento di un’apposita architrave in acciaio. Per quanto riguarda il soppalco e la scala, si preferisce non gravare sulla struttura esistente scegliendo strutture autoportanti in legno per il soppalco, e in ferro spazzolato per la scala. I tavolati divisori sul soppalco sono pensati in cartongesso, mentre in camera padronale è possibile ampliare l’ambiente bagno attraverso il posizionamento di un’apposita architrave in acciaio come per il livello inferiore.
Vai su
Invia una richiesta di lavoro a Sebastiano Cossai
+ Allega file
Invia
 
Designer di Interni vicino a te
Professionisti selezionati:
Cambia filtri
INVIA
Modifica filtri
Annulla
Chiedi un preventivo gratuito a Sebastiano Cossai