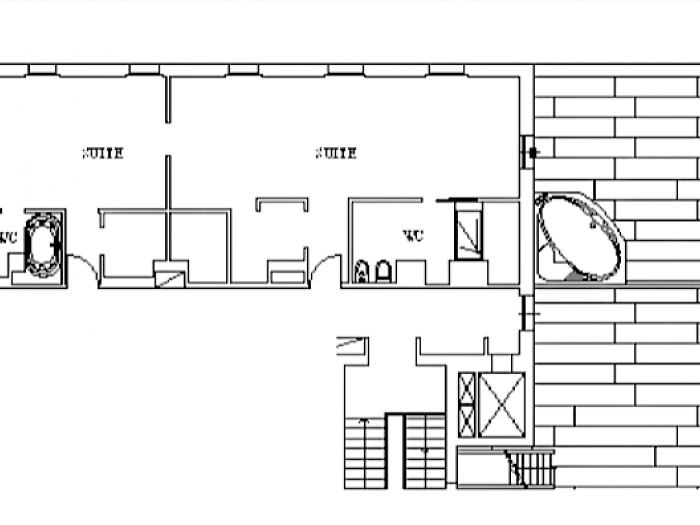
Il progetto consiste nella realizzazione di due distinte suite dell’hotel villa las tronas, queste sono divise da un muro con una porta centrale. è possibile trasformare i due ambienti in uno unico, venendo cosi a creare un grande suite.
Questo sito o gli strumenti terzi da questo utilizzati si avvalgono di cookie necessari al funzionamento ed utili alle finalità illustrate nella cookie policy. Se vuoi saperne di più o negare il consenso a tutti o ad alcuni cookie, consulta la cookie policy. Chiudendo questo banner, scorrendo questa pagina, cliccando su un link o proseguendo la navigazione in altra maniera, acconsenti all'uso dei cookie.