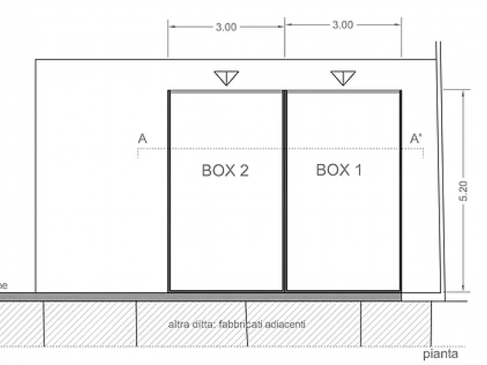
Progetto di un box auto ripartito in due unità. Una struttura leggera, prefabbricata, di facile cantierizzazione, rapida realizzazione ed abbattimento al minimo dei rischi per la sicurezza durante i lavori. La struttura prefabbricata è realizzata in pareti di lamiera bianca da 50 mm, copertura in pannelli coibentati grecati 30+40 mm rosso siena, travi-arcarecci-colonne metalliche saldati, profilati e tubolari metallici zincati, lattoneria in lamiera,portoni basculanti in lamiera a rigatura verticale. L'organismo è ancorato a terra su un preesistente basamento in cemento armato.
Il desiderio del committente era quello di avere un box auto tutto per se'. Dopo diversi inutili tentativi susseguitesi negli anni e che avevano ostacolato burocraticamente la realizzazione del manufatto, siamo riusciti a realizzare il piccolo grande sogno.
Questo sito o gli strumenti terzi da questo utilizzati si avvalgono di cookie necessari al funzionamento ed utili alle finalità illustrate nella cookie policy. Se vuoi saperne di più o negare il consenso a tutti o ad alcuni cookie, consulta la cookie policy. Chiudendo questo banner, scorrendo questa pagina, cliccando su un link o proseguendo la navigazione in altra maniera, acconsenti all'uso dei cookie.