Menu

Roberta Rosati

Progetto di organizzazione spazi interni - Milano (MI)

Numero di immagini
5
Visite ricevute
452
Like ricevuti
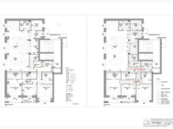
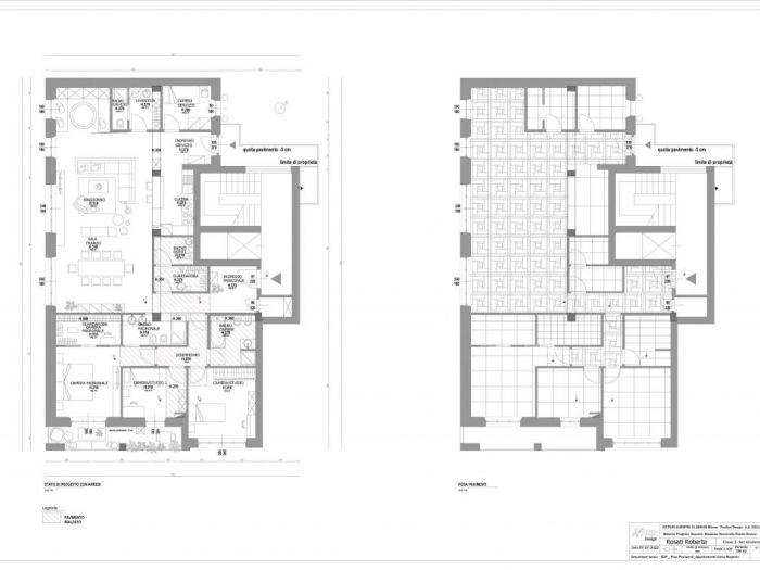
Progetto di organizzazione degli spazi di un immobile sito a milano. Progetto completo di piantina, prospetto, demolizioni e costruzioni e rendering
Vai su
Invia una richiesta di lavoro a Roberta Rosati
+ Allega file
Invia
 
Designer di Interni vicino a te
Professionisti selezionati:
Cambia filtri
INVIA
Modifica filtri
Annulla
Chiedi un preventivo gratuito a Roberta Rosati