Menu

Plasma Studio

Resort & chalets jasna’ - Jasna', Slovakia

Numero di immagini
17
Visite ricevute
640
Like ricevuti
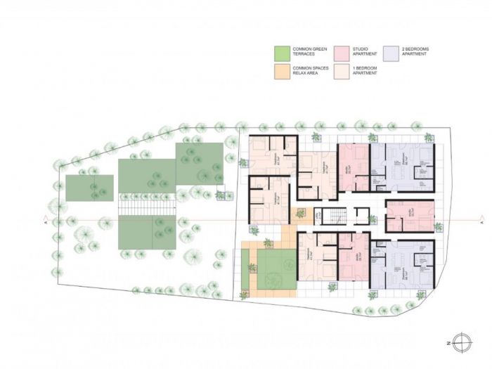
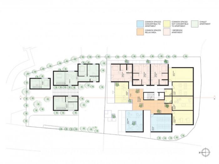
The site is located in a special and beautiful valley, and the intent of the design is to protect and to increase the quality of context of the existing natural environment with addition of the designed architectural solution. The plot, subdivided in two different portions, has the unique characteristic to be surrounded from the high trees of the forest, and it has a strategic location for his closeness with the ski lines, with the public bus transportation and it is easily reached by car. The strategy has been to start with the creation of a system of components, modular. Those blocks can host perfectly the four different apartments typologies requested, and also important functions like services, circulations, parking areas and common utilities for the users. For this specific plot, it has been set up important guide lines to follow up in the process of adaptation and cre­ation of the design building from the starting system. From the analysis have been understood important key points like: -integration with the surrounding forest with the technique of the camouflage; -creation of contemporaneity, high quality architectural language; -flexibility and possibility of future changes and dialogue with the client.
 
Vedi gli altri progetti
 
Vai su
Invia una richiesta di lavoro a Plasma Studio
+ Allega file
Invia
 
Architetti vicino a te
Professionisti selezionati:
Cambia filtri
INVIA
Modifica filtri
Annulla
Chiedi un preventivo gratuito a Plasma Studio