Hence the repetitive nature of identical residential plans within a high rise results either in repetitive horizontal banding, excessive glazing or arbitrary formal escapades.
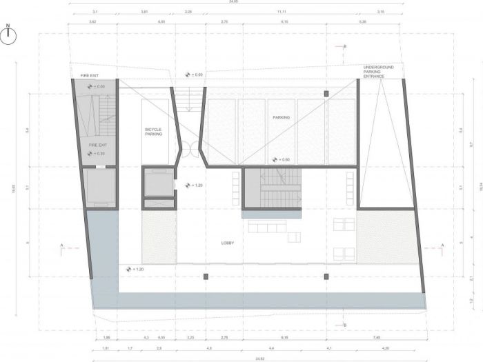
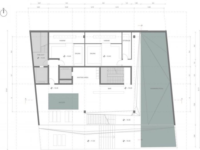
For this 16 storey condo development concept, we propose a rigid internal corezonen and systematic structural grid that then frees the north and south façades to express movement. In order to make complex façade elements at a feasible cost we devised a geometry that relies on a single set of moulds that can simply be turned around every second level. Using double-curved bands rhythmically is a pragmatic solution that combines the economy of repetition with an exciting and animated visual appearance.
The façade design engages with the social and cultural context in providing various degrees of visual openness and enclosure so the zones behind can be occupied in accordingly.
Questo sito o gli strumenti terzi da questo utilizzati si avvalgono di cookie necessari al funzionamento ed utili alle finalità illustrate nella cookie policy. Se vuoi saperne di più o negare il consenso a tutti o ad alcuni cookie, consulta la cookie policy. Chiudendo questo banner, scorrendo questa pagina, cliccando su un link o proseguendo la navigazione in altra maniera, acconsenti all'uso dei cookie.