Menu

Plasma Studio

Circus house - London, Uk

Numero di immagini
11
Visite ricevute
563
Like ricevuti
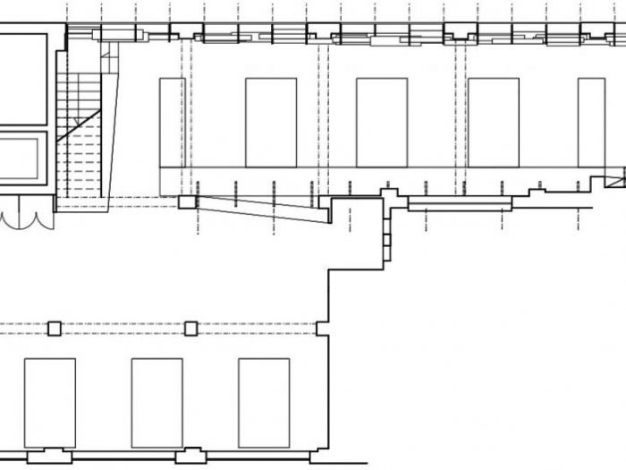
A room-long workbench provides a backbone for a series of workstations. At one end it folds down to form visitor seating. This intention to unify the worksphere with the reception of visitors is further enhanced by carrying the overall aesthetic to the reception desk. An extensive display system made from a series of perspex risers highlights the structural modular of the building, and projects daylight into the space in unpredictable and fluctuating ways. The risers are cut in order to reveal a continuous wedge-shaped volume that differentiates the corridor from its sides. Its shelves, made from a combination of folded perforated steel and plywood, are arranged in a school-of-fish pattern. In keeping with the riser motif, this suggests coherence amongst individuals that form a community. Carrying working and presentation models, this pattern is representative of the firm's working methods and social framework. A new staircase was inserted to connect both floors of the office. Solid planks of plywood are suspended from full height perspex screens; in this way, the stair reads as an extension of the display system. The action of walking up the stairs thus corresponds to physically entering the display. The shape and material of the elements have been chosen to abstract the experience from possible semantic interpretations, but, at the same time, induce an excess of ephemeral visual conditions.
 
Vedi gli altri progetti
 
Vai su
Invia una richiesta di lavoro a Plasma Studio
+ Allega file
Invia
 
Architetti vicino a te
Professionisti selezionati:
Cambia filtri
INVIA
Modifica filtri
Annulla
Chiedi un preventivo gratuito a Plasma Studio