Menu

Noname Studio

Nehirpark residences - Roma (RM)

Numero di immagini
11
Visite ricevute
628
Like ricevuti
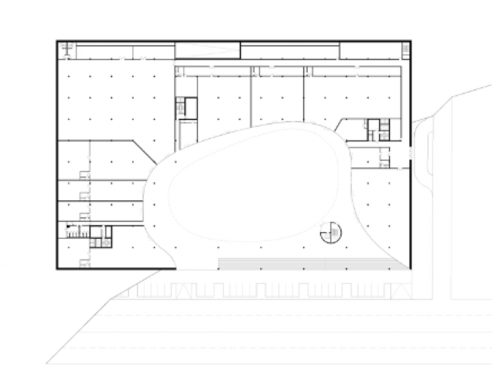
Mixed use Service Masterplan concept design / architectural concept design Program The parcel leans on a steep hill with around 30 m of altitude difference facing a major vehicular street and the site benefits from a 360° view on the surrounding natural landscape. According to the morphology of the site we decided to concentrate buildings on the lowest corner of the plot for two reasons: excavate the lesser part of soil possible and to emphasize the most visible corner of the plot facing the street. The design effort was to locate parking space in an easy to reach space without wasting valuable building surface. Another volume is stacked on parkings to create a flat platform that emerges from the ground to host commercial functions. Parking and commercials floor stacked become a sort of plinth on wich the whole complex leans on. The commercial volume is eroded to create an inner space for customers away from the street and allowing the sun light inside the courtyard and into the inner facade. Above the platform common spaces, indoor and outdoor facilities for residents find place. They are connected by a continuous green surface accessible by two different spots. The main one is a vehicular and pedestrian access fo residents and visitors, on the higher part of the plot, the second one is facing the main street, suggesting a new pedestrian connection with the park. From fourth floor upward residential units are planned, all with optimal sun light conditions and magnificent views on the park and the river. Data Location: ankara - turkey Year: masterplan and architectural design 2017 Area: 38.000 sqm Partnerships Client: ba group Consultant: kutval project © 2020 noname studio
 
Vedi gli altri progetti
 
Vai su
Invia una richiesta di lavoro a Noname Studio
+ Allega file
Invia
 
Architetti vicino a te
Professionisti selezionati:
Cambia filtri
INVIA
Modifica filtri
Annulla
Chiedi un preventivo gratuito a Noname Studio