Menu

Noname Studio

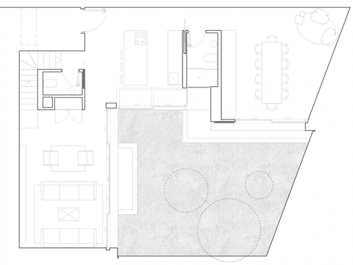
Alloggiamento del patio - Milano (MI)

Numero di immagini
22
Visite ricevute
527
Like ricevuti
Residenziale Servizio Progetto architettonico / progetto schematico architettonico / progetto architettonico dettagliato / direzione artistica Programma L'oggetto dell'edificio dell'intervento è un'officina di riparazione auto risalente al 1940, un edificio a un piano fuori terra con tetto a botte. L'edificio si trova all'interno di un cortile residenziale privato a milano. Il nuovo edificio ha due piani fuori terra e uno sotterraneo ed è generato da un'alternanza di spazi pieni e vuoti, che consente alle nuove unità abitative di affrontare esclusivamente terrazze private. Questo layout è motivato dalla particolare situazione della trama in cui è inserito il progetto. Questa scelta consente di creare un edificio dal carattere urbano che, allo stesso tempo, riesce a conferire ad ogni unità una dimensione intima e domestica. L'accesso alle singole ville avviene tramite una passerella comune illuminata da una luce naturale proveniente dai vuoti situati nel tetto, tra le unità. Le facciate sud-est sono caratterizzate da una combinazione di specchi a figura intera con pannelli ciechi in legno per bilanciare le esigenze di illuminazione interna e privacy. Le facciate nord-ovest invece, di fronte agli edifici esistenti, sono cieche e compatte, l'unica fonte di luce è costituita da un'apertura a nastro posta in corrispondenza dei primi piani, che garantisce la risposta dell'aria alle stanze opposte. Uno strato di ghiaia che mitiga l'abbagliamento solare copre la terza facciata dell'edificio, il tetto, visibile dagli edifici che compongono il contesto. La particolare situazione della trama ci ha negato di usare i muri di cinta esterni per aprire le viste. Per questo motivo abbiamo deciso di scavare vuoti all'interno della forma solida, creando in questo modo cortili privati ​​per garantire viste privilegiate. Il patio è lo spazio dominante attorno al quale è organizzata la vita domestica, nonché la circolazione: l'accesso alle singole ville o la distribuzione al primo piano. L'edificio ha un carattere urbano ma, allo stesso tempo, conferisce ad ogni unità una dimensione intima e domestica. Dati Luogo: via cadolini 13, 20137 milano - italia Anno: concept design 2013 / schematic design 2013 / progetto esecutivo 2014 / direzione artistica 2015-2019 Superficie: 800 mq Partnership Cliente: cadolini immobiliare Gestione dello sviluppo: ma2a Struttura: ing. Roberto cigada Ingegneria: studio gheza Costi di stima: arch. Andrej mikuz © 2020 noname studio
 
Vedi gli altri progetti
 
Vai su
Invia una richiesta di lavoro a Noname Studio
+ Allega file
Invia
 
Architetti vicino a te
Professionisti selezionati:
Cambia filtri
INVIA
Modifica filtri
Annulla
Chiedi un preventivo gratuito a Noname Studio