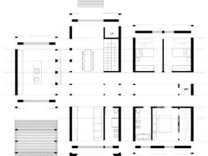
Iam125 è il risultato di un potente esperimento condotto nei nostri laboratori di progettazione, che ha avuto ad oggetto la combinazione di vari moduli. Secondo noi l’esperimento è ben riuscito e il risultato è stupefacente. Scopri le innumerevoli qualità di questo modello.
Questo sito o gli strumenti terzi da questo utilizzati si avvalgono di cookie necessari al funzionamento ed utili alle finalità illustrate nella cookie policy. Se vuoi saperne di più o negare il consenso a tutti o ad alcuni cookie, consulta la cookie policy. Chiudendo questo banner, scorrendo questa pagina, cliccando su un link o proseguendo la navigazione in altra maniera, acconsenti all'uso dei cookie.