Attività commerciale stile industrial - Salerno (SA)
10
701
8
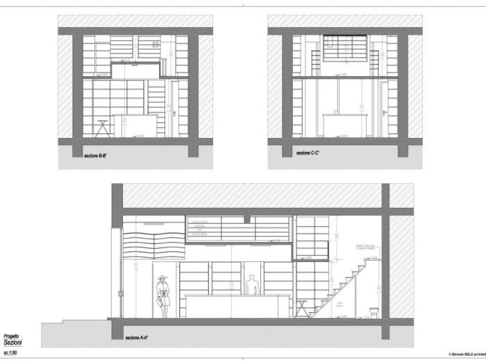
Intervento: progetto soppalco e arredamento
Stile: industrial
Sup.: 70.00mq
Piani: t
Livelli: 2
Anno: 2020/21il locale, di circa 40 mq presentava notevoli problemi di organizzazione interna data la necessità di utilizzo come vendita al pubblico di prodotti per l'intimo e la mancanza di un locale deposito che consentisse l'immagazzinamento di un notevole quantitativo di merci. Il progetto è stato quindi sviluppato intorno all'idea di un soppalco a due livelli, uno di calpestio , l'altro come piano di un grande scaffale centrale sospeso. Tale accorgimento ha consentito di ampliare lo spazio di cui si disponeva.
Questo sito o gli strumenti terzi da questo utilizzati si avvalgono di cookie necessari al funzionamento ed utili alle finalità illustrate nella cookie policy. Se vuoi saperne di più o negare il consenso a tutti o ad alcuni cookie, consulta la cookie policy. Chiudendo questo banner, scorrendo questa pagina, cliccando su un link o proseguendo la navigazione in altra maniera, acconsenti all'uso dei cookie.