Menu

Mario Verace

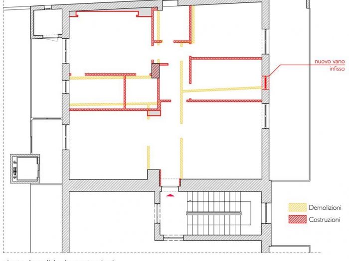
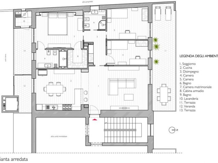
Casa 10² - Angri (SA)

Numero di immagini
18
Visite ricevute
605
Like ricevuti
Casa 10²
 
Vedi gli altri progetti
 
Vai su
Invia una richiesta di lavoro a Mario Verace
+ Allega file
Invia
 
Architetti vicino a te
Professionisti selezionati:
Cambia filtri
INVIA
Modifica filtri
Annulla
Chiedi un preventivo gratuito a Mario Verace