Menu

Mario Pucciarelli

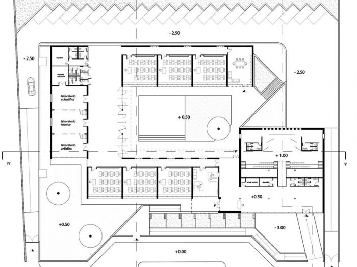
Nuova scuola media di berlingo - Berlingo (BS)

Numero di immagini
6
Visite ricevute
725
Like ricevuti
Nuova scuola media di berlingo
 
Vedi gli altri progetti
 
Vai su
Invia una richiesta di lavoro a Mario Pucciarelli
+ Allega file
Invia
 
Architetti vicino a te
Professionisti selezionati:
Cambia filtri
INVIA
Modifica filtri
Annulla
Chiedi un preventivo gratuito a Mario Pucciarelli