Menu

Marco Cantini

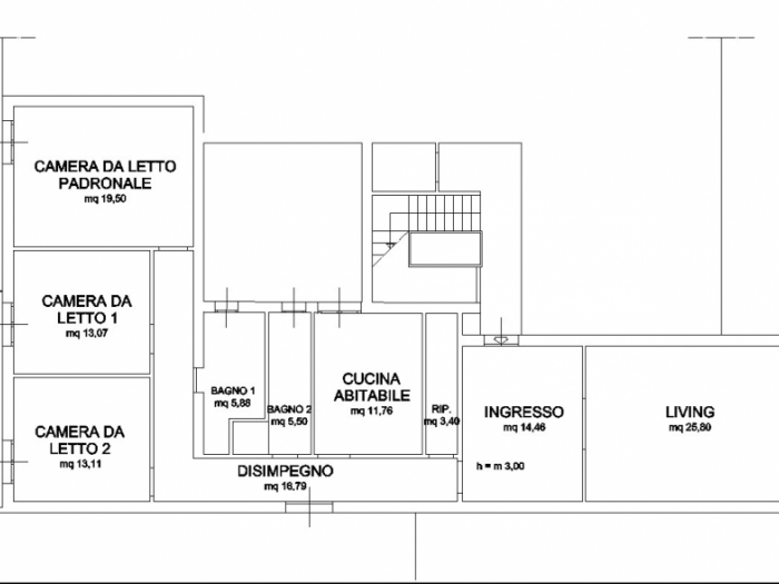
Residenza privata (2015) - Firenze (FI)

Numero di immagini
13
Visite ricevute
549
Like ricevuti
Residenza privata (2015), ristrutturazione edilizia.
 
Vedi gli altri progetti
 
Vai su
Invia una richiesta di lavoro a Marco Cantini
+ Allega file
Invia
 
Architetti vicino a te
Professionisti selezionati:
Cambia filtri
INVIA
Modifica filtri
Annulla
Chiedi un preventivo gratuito a Marco Cantini