Menu

Luni Progres

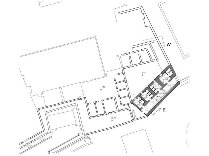
Fortezza nuova - Livorno (LI)

Numero di immagini
11
Visite ricevute
519
Like ricevuti
Indagine storico-archivistica rilievo longimetrico di una porzione della fortezza
 
Vedi gli altri progetti
 
Vai su
Invia una richiesta di lavoro a Luni Progres
+ Allega file
Invia
 
Architetti vicino a te
Professionisti selezionati:
Cambia filtri
INVIA
Modifica filtri
Annulla
Chiedi un preventivo gratuito a Luni Progres