Ristrutturazione parziale della zona giorno di un appartamento privato - Saronno (VA)
9
459
0
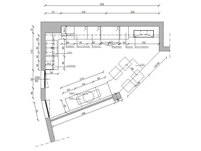
Ristrutturazione parziale di un appartamento privato a saronno.
Rispetto allo stato di fatto, è stata progettata una nuova cucina e, grazie alla progettazione di una parete listellare in legno, di un pavimento in cemento-resina a copertura delle vecchie piastrelle e dell'uso dei colori dai toni tenui, l'ambiente giorno ha trovato una nuova armonia
Chiedi un preventivo gratuito aIntrecciodilinee Creative Design Studio
INFORMATIVA
Questo sito o gli strumenti terzi da questo utilizzati si avvalgono di cookie necessari al funzionamento ed utili alle finalità illustrate nella cookie policy. Se vuoi saperne di più o negare il consenso a tutti o ad alcuni cookie, consulta la cookie policy. Chiudendo questo banner, scorrendo questa pagina, cliccando su un link o proseguendo la navigazione in altra maniera, acconsenti all'uso dei cookie.