Nel mezzo dell’area di cinarcik, una zona naturale ed estesa, il progetto consiste in un centro residenziale e hotel con camere e appartamenti per tutte le richieste.
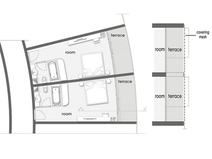
I volumi del complesso architettonico crescono seguendo il pendio della collina. Nella parte superiore dell’altura abbiamo l’hotel principale. La sua forma curva permette di assicurare la vista sul mare a tutte le camere.le ville residenziali invece si estendono nell’area più bassa, sul fondo,
Tra le due funzioni ci sono tutti i servizi in comune per tutti gli ospiti: piscine, campi da gioco, parco-giardino, etc.
Programma: hotel, piscine, ristoranti e spazi ricettivi
Servizi: progettazione preliminare
Cliente: privato
Luogo: yalova (turchia)
Anno: 2013
Area: 4000 mq
Copyright: studio vertebra
Design team: arch. Gencer yalçin, arch. Antonio mantelli, nevzat bardakçı
Questo sito o gli strumenti terzi da questo utilizzati si avvalgono di cookie necessari al funzionamento ed utili alle finalità illustrate nella cookie policy. Se vuoi saperne di più o negare il consenso a tutti o ad alcuni cookie, consulta la cookie policy. Chiudendo questo banner, scorrendo questa pagina, cliccando su un link o proseguendo la navigazione in altra maniera, acconsenti all'uso dei cookie.