Menu

Giulio Cucciniello

Elba 12 - Milano (MI)

Numero di immagini
18
Visite ricevute
318
Like ricevuti
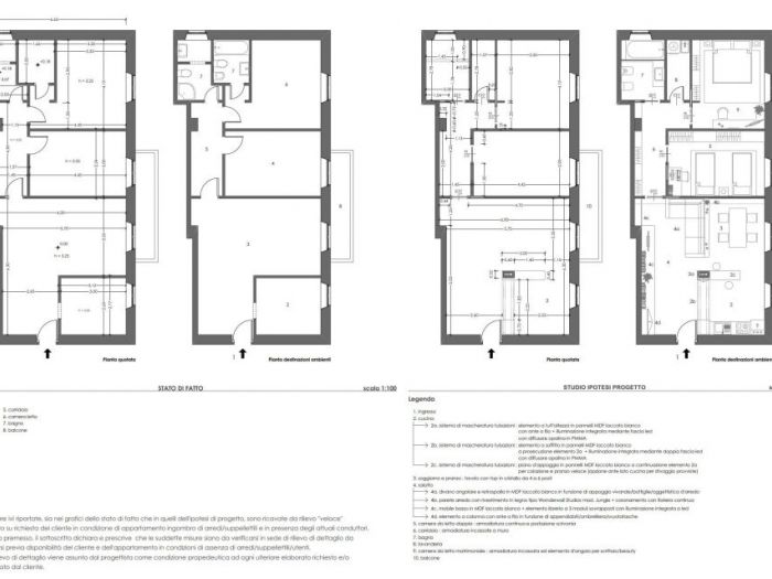
Project elba 12 Location Milano - italy Year 2017 Dimensional data Plot = 80 m2 Build = 80 m2 Client Perone building group Cost € 70.000,00 Design and collaboration Giulio cucciniello Author’s biography Giulio cucciniello (1980), in 2002 he is "deserving student" in the research and teaching program of the facoltà di architettura di napoli for a semester study at école nationale supérieure d'architecture paris-malaquais. In 2007 he graduated cum laude in architettura with nicola pagliara at the università federico ii di napoli. In 2004, while still a student, he began his career in avellino at petracca associati. In 2008 he won 1th prize at the inarchlab 08 international design workshop of the istituto nazionale di architettura ed urbanistica (in/arch). In 2013, as a young professional, with michaelides associati of milan he won the competition for the construction of the new amiacque headquarters in magenta (mi) and moved to milan. In 2015, in collaboration with michaelides associati, he works at expo 2015 taking part in the construction of palazzo italia and the cardo buildings. In 2017 he began his autonomous activity in milan, planning several renovations of private homes. In 2019 with andrea liverani he won 4th prize in the competition for the cavalcaselle school complex in legnago (vr). In 2020 he is co-founder of arcipelagoarchitects with giovanni bassi, andrea liverani and roberto querci. Links Https://www.archilovers.com/projects/300681/elba-12.html Https://www.linkedin.com/in/giuliocucciniello/ Https://www.arcipelagoarchitects.it/
 
Vedi gli altri progetti
 
Vai su
Invia una richiesta di lavoro a Giulio Cucciniello
+ Allega file
Invia
 
Architetti vicino a te
Professionisti selezionati:
Cambia filtri
INVIA
Modifica filtri
Annulla
Chiedi un preventivo gratuito a Giulio Cucciniello