Nella ristrutturazione di questo minimarket a gestione familiare nei pressi di casamari ci siamo trovati da subito a nostro agio con la committenza (complici i fantastici biscotti prodotti da stefano! ) abbiamo stabilito i critari principali del progetto per poi allargare l'approccio al nome nuovo nome da dare al negozio rinnovato (la gestione sarebbe passata dal fondatore gianfranco a chiara) al logo e a qualche spunto di marketing. Va sicuramente detto che in quest'epoca di spesonalizzazione del mercato, dai colossali centricommerciali agli asettici supermarket passando per l'impersonale e alieno acquisto online trovare un'attività gestita a livello familiare con autenticità e dedizione ci ha fatto sentire ancor più responsabili ed onorati del supporto e del lavoro che stavamo per fare!
... Due note progettuali ...
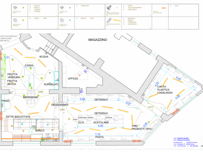
Il pavimento è stata una delle prime emergenze da affrontare ed a livello progettuale abbiamo ricercato un materiale adatto ma che rimanesse "anonimo" in questo la fac edilizia di gianluca fabrizi ci ha dato un ottimo supporto.
Il progetto è partito dalla suggestione del luogo ed ovviamente dalla presenza dell' abbazia di casamari , gli archi e le cuspidi hanno generato un susseguirsi di curve nei controsoffitti rincorrendo un'idea di spazio nuovo e dinamico in cui attraverso l'utilizzo dei colori vengono messe in risalto le zone dei vari prodotti. Inoltre da un punto di vista estetico e funzionale i controsoffitti sono serviti ad "eliminare" la presenza delle travi ed all'alloggiamento di luci specifiche , casse audio, videosorveglianza ed allarme.
Chiedi un preventivo gratuito aGianluca Fricchione
INFORMATIVA
Questo sito o gli strumenti terzi da questo utilizzati si avvalgono di cookie necessari al funzionamento ed utili alle finalità illustrate nella cookie policy. Se vuoi saperne di più o negare il consenso a tutti o ad alcuni cookie, consulta la cookie policy. Chiudendo questo banner, scorrendo questa pagina, cliccando su un link o proseguendo la navigazione in altra maniera, acconsenti all'uso dei cookie.