I piccoli progetti danno sempre un sacco di soddisfazioni.
Questo intervento è ricco di particolari preziosi, che rendono un piccolo spazio, davvero funzionale, lasciando spazio solo al piacere di stare in cucina!
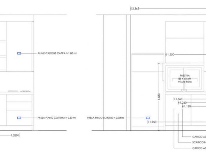
Nell'intervento era già presente il frigorifero.
La cucina è di binova, modello bluna in laccato lucido, con un particolare modello di cappa integrata faber perfettamente integrata nel pensile.
Chiedi un preventivo gratuito aGiada Mete Architect Home Coach
INFORMATIVA
Questo sito o gli strumenti terzi da questo utilizzati si avvalgono di cookie necessari al funzionamento ed utili alle finalità illustrate nella cookie policy. Se vuoi saperne di più o negare il consenso a tutti o ad alcuni cookie, consulta la cookie policy. Chiudendo questo banner, scorrendo questa pagina, cliccando su un link o proseguendo la navigazione in altra maniera, acconsenti all'uso dei cookie.