Descrizione
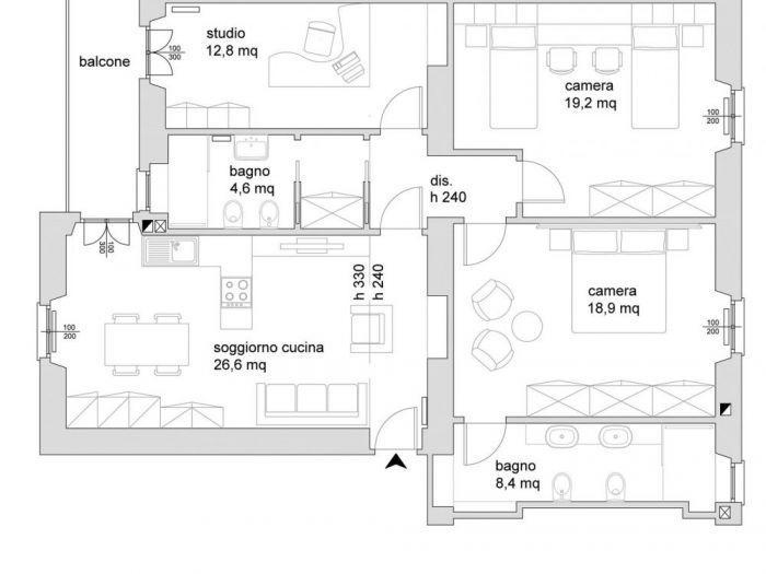
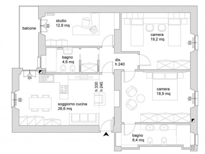
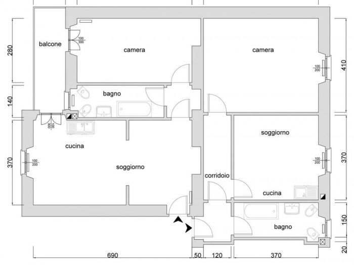
Progetto di ristrutturazione d'interni. Due alloggi di piccole dimensioni vengono uniti per soddisfare le esigenze di spazio di una famiglia di 4 persone. Si ricavano così due camere da letto, una padronale e una doppia per i figli, lo studio, che all'occorenza può diventare una terza cameretta, la zona giorno, e due bagni. Gli interventi murari sono stati ridotti al minimo per contenere i costi. Grande attenzione è stata data alla scelta delle finiture interne e degli arredi, caratterizzando ogni ambiente con una nota di colore.
Dettagli
•ristrutturazione
•colore
•arredamento
Chiedi un preventivo gratuito aFederico Berti Architetto
INFORMATIVA
Questo sito o gli strumenti terzi da questo utilizzati si avvalgono di cookie necessari al funzionamento ed utili alle finalità illustrate nella cookie policy. Se vuoi saperne di più o negare il consenso a tutti o ad alcuni cookie, consulta la cookie policy. Chiudendo questo banner, scorrendo questa pagina, cliccando su un link o proseguendo la navigazione in altra maniera, acconsenti all'uso dei cookie.