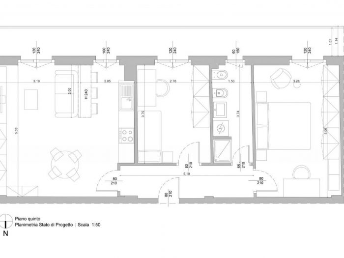
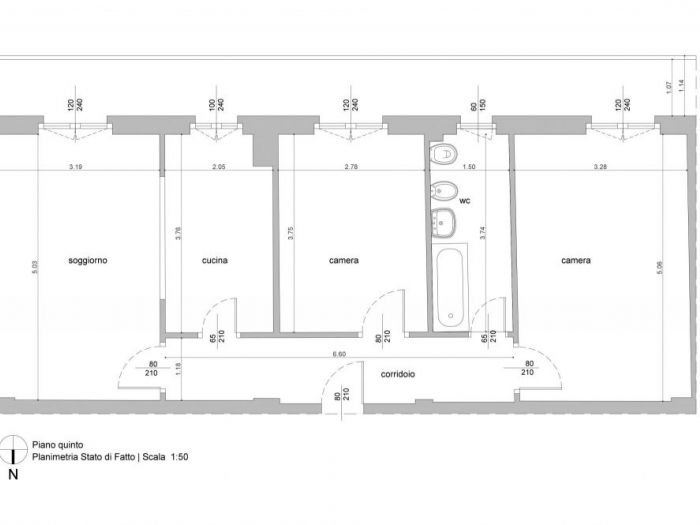
Progetto di ristrutturazione d'interni che mira alla riqualificazione funzionale degli spazi, unificando soggiorno e cucina in un unico locale. Particolare attenzione è stata data alla scelta del colori e all'accostamento dei materiali utilizzati.
Chiedi un preventivo gratuito aFederico Berti Architetto
INFORMATIVA
Questo sito o gli strumenti terzi da questo utilizzati si avvalgono di cookie necessari al funzionamento ed utili alle finalità illustrate nella cookie policy. Se vuoi saperne di più o negare il consenso a tutti o ad alcuni cookie, consulta la cookie policy. Chiudendo questo banner, scorrendo questa pagina, cliccando su un link o proseguendo la navigazione in altra maniera, acconsenti all'uso dei cookie.