Menu

Depaolidefranceschibaldan Architetti

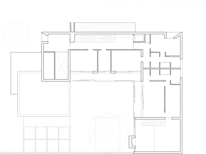
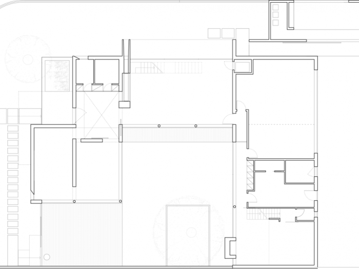
Villa mm - Padova (PD)

Numero di immagini
28
Visite ricevute
548
Like ricevuti
Villa mm
 
Vedi gli altri progetti
 
Vai su
Invia una richiesta di lavoro a Depaolidefranceschibaldan Architetti
+ Allega file
Invia
 
Ingegneri Edili vicino a te
Professionisti selezionati:
Cambia filtri
INVIA
Modifica filtri
Annulla
Chiedi un preventivo gratuito a Depaolidefranceschibaldan Architetti